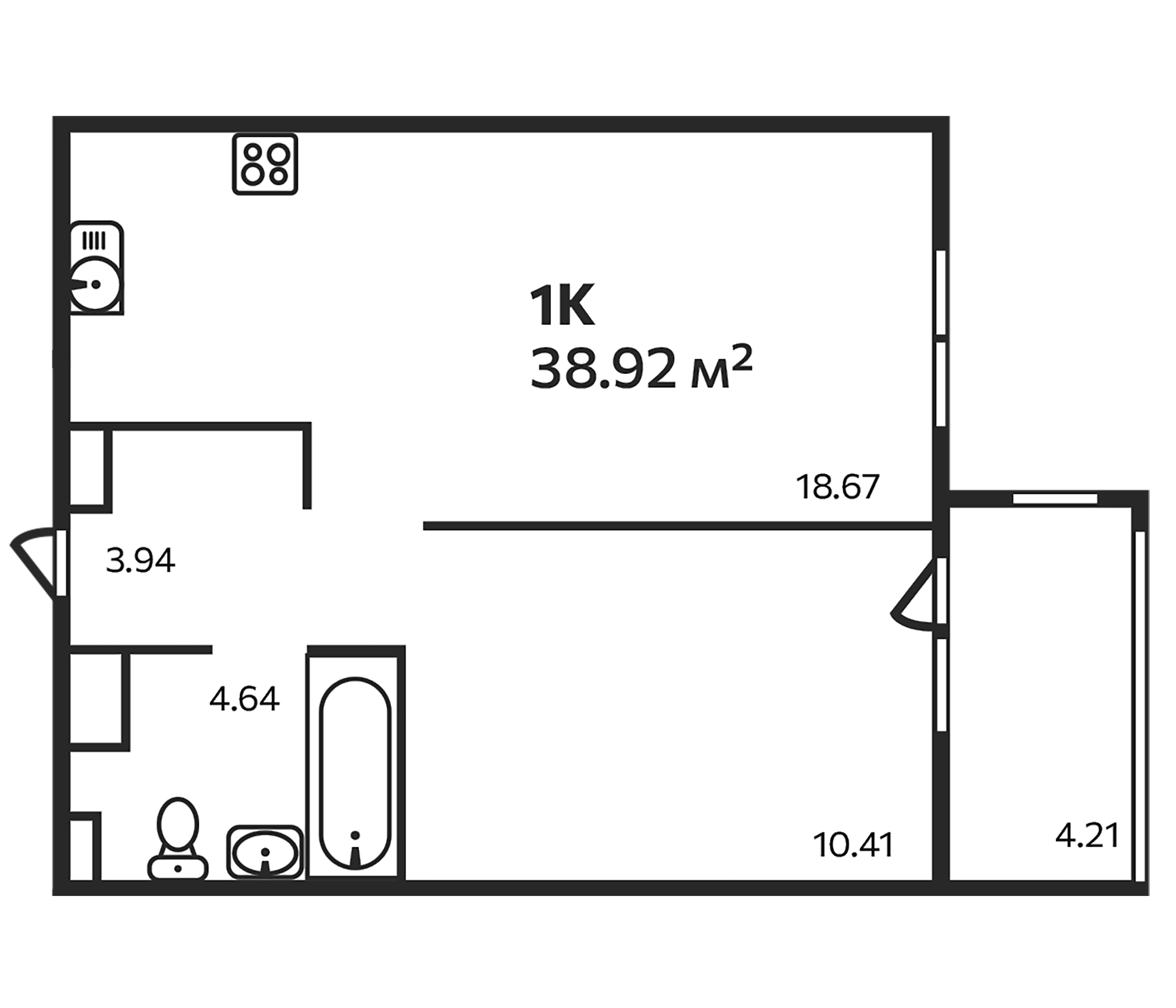
Планировка
Характеристики квартиры
- Комнат: 1-к.кв
- S общая: 37.66 м2
Этаж: 1
Цена: 5 526 640₽
Цена за м2: 146 751₽- Отделка: Подчистовая
Запросить информацию
+7 (812) 385-52-98Описание
Жилой комплекс представляет собой пять 9-этажных дома, построенных в едином архитектурном стиле. Вход в подъезд расположен на уровне тротуара, в просторных входных группах установлены современные лифты. В каждом корпусе спроектированы колясочные.
В проекте предложено множество планировочных решений: однокомнатные, двухкомнатные и трехкомнатные квартиры. Сдаются они с высотой потолков 2.7 метров, увеличенными окнами, без отделки, с подчистовой и чистовой отделкой в 2-х вариантах. Имеются квартиры с видом на город, Выборгский залив и сосновый лес.
На закрытой и охраняемой территории комплекса спроектирована парковая зона, велосипедные дорожки, зоны барбекю, беседки, детские и спортивные площадки.
Жилой комплекс расположен в экологически чистом районе с развитой инфраструктурой. В пешей доступности расположены 2 школы, 3 детских сада, магазины, спортивный комплекс «Южный». За 2 минуты пешком можно добраться до Соснового леса.
Основная информация о комплексе
- Метро: Комендантский проспект
- Срок сдачи: 1 кв. 2026
- Цена от: 5 511 020₽
- Застройщик: СУ Эдельвейс



