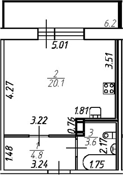
Планировка
Характеристики квартиры
- Комнат: Студия
- S общая: 28.5 м2
Этаж: 5
Цена: 5 411 200₽
Цена за м2: 189 867₽- Отделка: Подчистовая
Запросить информацию
+7 (812) 385-52-98Описание
Данный жилой комплекс представляет собой 12 этажный корпус, построенный по долговечной кирпично-монолитной технологии. Площадь застройки составляет 2698 кв.метров, а фасад выполнен в современной стилистике, цвет оформления — теплые оттенки. В доме выполнена дизайнерская отделка входных групп и установлены современные лифты.
В проекте предложено множество планировочных решений: в наличии квартиры, как классического типа, так и европланировки. Сдаются они с подчистовой отделкой и высотой потолков 2,7 метра.
Территория комплекса закрытая, на ней проведено озеленение — высажены кустарники, цветы и деревья. Придомовая территория обустроена большой детской площадкой. На другом конце комплекса расположена парковка для автомобилей.
Жилой комплекс находится во Всеволожском районе. Инфраструктура района развита, в пешей доступности: детский сад, магазины, аптеки, мастерские, салоны красоты. В 2023 году появится новая школа на 1120 мест. До метро «Девяткино» — 15 минут пешком.
Основная информация о комплексе
- Метро: Девяткино
- Срок сдачи: 3 кв. 2024
- Цена от: 3 951 600₽
- Застройщик: ИСК ВИТА








