4Е-к.кв в ЖК SERTOLOVO PARK

г. сертолово, выборгское шоссе (метро Парнас)

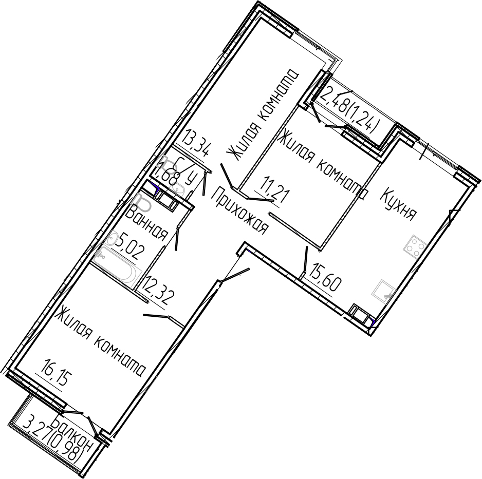
Планировка

Характеристики квартиры

  • Комнат: 4Е-к.кв
  • S общая: 75.32 м2
  • Этаж: 3
  • Цена: 14 655 060₽
  • Цена за м2: 194 571₽
  • Отделка: Чистовая

Запросить информацию

+7 (812) 385-52-98

Описание

Жилой комплекс представляет собой четыре дома построенные в едином европейском архитектурном стиле высотой 5-6-8 этажей. Возведены они по панельной технологии строительства. В оформлении фасадов использовано 2 оттенка штукатурки — белый и серый.

В жилом комплексе предложены различные планировки от студий до трехкомнатных. Сдаются они с отделкой и увеличенными окнами и высотой потолков 2,74 метра.

Проект имеет закрытую территорию с видеонаблюдением. Во внутреннем дворе организованы места для отдыха, установлены детские площадки и оборудованы зеленые зоны для прогулок. Для владельцев автомобилей спроектирован крытый многоуровневый паркинг.

Жилой комплекс располагается в Всеволожском районе в городе Сертолово. В пешей доступности находится вся необходимая инфраструктура: детские сады, школы, магазины. Станция метро «Парнас» находится в 20 минутах транспортом.

Основная информация о комплексе

  • Метро: Парнас
  • Срок сдачи: 2 кв. 2027
  • Цена от: 5 422 300₽
  • Застройщик: Algoritm Group

Запросить информацию

+7 (812) 385-52-98

Ипотечный калькулятор

Ежемесячный платеж: 0

Остались вопросы?

Заполните форму и мы свяжемся с Вами в ближайшее время.
Оставить заявку

Заполните форму