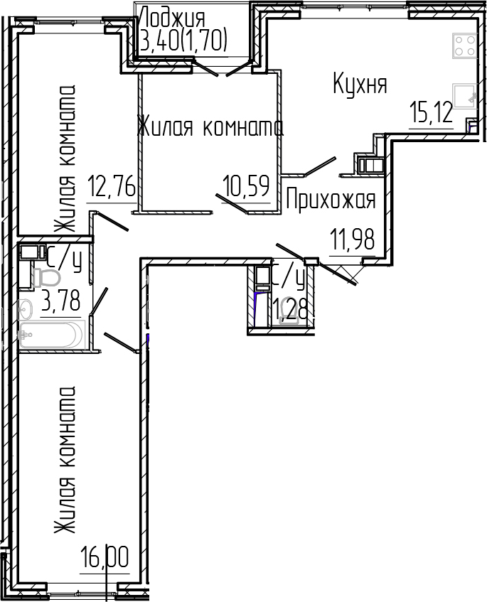
Планировка
Характеристики квартиры
- Комнат: 4Е-к.кв
- S общая: 71.51 м2
Этаж: 6
Цена: 14 202 740₽
Цена за м2: 198 612₽- Отделка: Чистовая
Запросить информацию
+7 (812) 385-52-98Описание
Жилой комплекс представляет собой четыре дома построенные в едином европейском архитектурном стиле высотой 5-6-8 этажей. Возведены они по панельной технологии строительства. В оформлении фасадов использовано 2 оттенка штукатурки — белый и серый.
В жилом комплексе предложены различные планировки от студий до трехкомнатных. Сдаются они с отделкой и увеличенными окнами и высотой потолков 2,74 метра.
Проект имеет закрытую территорию с видеонаблюдением. Во внутреннем дворе организованы места для отдыха, установлены детские площадки и оборудованы зеленые зоны для прогулок. Для владельцев автомобилей спроектирован крытый многоуровневый паркинг.
Жилой комплекс располагается в Всеволожском районе в городе Сертолово. В пешей доступности находится вся необходимая инфраструктура: детские сады, школы, магазины. Станция метро «Парнас» находится в 20 минутах транспортом.
Основная информация о комплексе
- Метро: Парнас
- Срок сдачи: 2 кв. 2027
- Цена от: 5 422 300₽
- Застройщик: Algoritm Group



