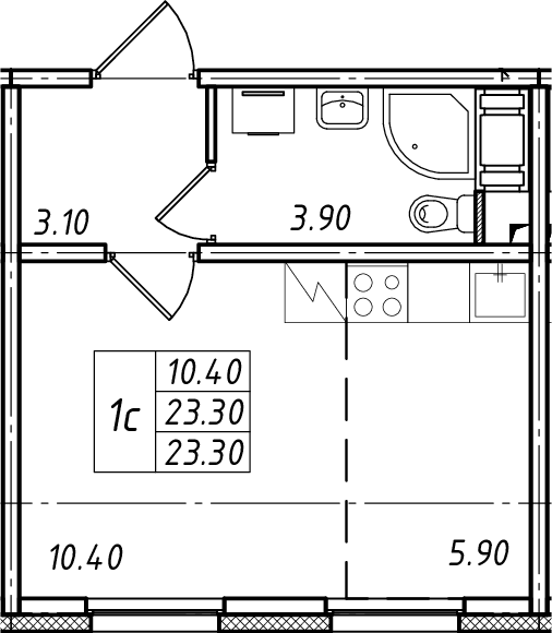
Планировка
Характеристики квартиры
- Комнат: Студия
- S общая: 23 м2
Этаж: 11
Цена: 4 570 100₽
Цена за м2: 198 700₽- Отделка: Чистовая
Запросить информацию
+7 (812) 385-52-98Описание
Жилой комплекс включает в себя несколько десятков домов высотой от 9 до 16 этажей. В оформлении фасадов используется штукатурка. Сквозные парадные от уровня земли позволяют попасть в дом с обеих сторон и упрощают вход для маломобильных жителей. На первом этаже предусмотрена колясочная, а у парадной есть велопарковка.
В жилом комплексе предложено множество планировочных решений: в наличии квартиры, как классического типа, так и европланировки. Трубы отопления и водоснабжения, скрытые в стяжке пола, сохраняют эстетику пространства, а установленные клапаны инфильтрации — чистоту и свежесть воздуха. Квартиры сдаются уже с чистовой отделкой и высотой потолков 2,55 метра.
На территории жилого комплекса спроектированы велодорожки, наземные паркинги и гостевые автопарковки. Во дворе, закрытом от машин, находятся стильные зоны отдыха, современные детские и спортивные площадки. Ландшафт благоустроен по новому стандарту ЛСР: газон, крупномеры и многолетние кустарники. Безопасность в жилом комплексе обеспечивают камеры видеонаблюдения. В домах установлена пожарная сигнализация, датчики дыма и система пожаротушения на каждом этаже, а на территории организована безбарьерная среда.
Жилой комплекс расположен во Всеволожском районе. В пешей доступности от комплекса находится железнодорожная станция «Ковалево». Ближайшие крупные торговые центры «Охта Молл» и «Мега Дыбенко» — в 30 минутах транспортом. 20 минут необходимо, чтобы доехать до Ржевского лесопарка, 30 минут — до Колтушских высот с экотропой, 50 минут — до Ладожского озера. В перспективе до жилого комплекса планируется продлить автобусный маршрут, вместе с продолжением Ирииновского проспекта город обещает построить развязку с КАД.
Основная информация о комплексе
- Метро: Ладожская
- Срок сдачи: 4 кв. 2028
- Цена от: 4 213 660₽
- Застройщик: ЛСР. Северо-Запад


