Планировка

Характеристики квартиры
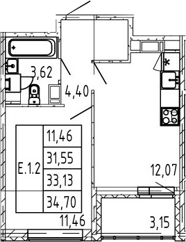
- Комнат: 2Е-к.кв
- S общая: 30.6 м2
Этаж: 11
Цена: 7 255 888₽
Цена за м2: 237 121₽
- Отделка: Чистовая
Запросить информацию
+7 (812) 385-52-98Описание
Жилой комплекс спроектирован в модном стиле скандинавского минимализма и отличается сдержанными цветовыми решениями. Хорошая естественная освещенность 12-этажного жилого квартала позволяет создать более уютную атмосферу. Во всех домах сделана дизайнерская отделка входных групп и установлены современные лифты.
В жилом комплексе предложено множество планировочных решений: в наличии квартиры, как классического типа, так и европланировки. Сдаются они с чистовой отделкой, высотой потолков от 2,7 метров.
Жилой квартал объединяет 6 домов, детский сад и школу. Корпуса образуют дворы закрытой формы с оборудованным пространством для спорта и отдыха. Во дворах расположены игровые площадки для детей разных возрастов, площадки для воркаута и для командных игр, также предусмотрено место для игры в настольный теннис. На первом этаже разместились коммерческие помещения. Для владельцев автомобилей предусмотрен многоуровневый паркинг.
Жилой квартал находится в западной части Мурино, современном благоустроенном пригороде Петербурга, в живописном месте, неподалеку от реки Охта. Ближайшая станция метро — Девяткино, железнодорожная станция — Лаврики. Удачная локация позволяет быстро добраться до исторического центра города, и в наиболее популярные места загородного отдыха — Охта-парк, Северный склон, Зубровник, озеро Хепоярви и Кавголовское озеро.
Основная информация о комплексе
- Метро: Девяткино
- Срок сдачи: 3 кв. 2024
- Цена от: 4 144 888₽
- Застройщик: ГК Полис