2Е-к.кв в ЖК Point Токсово
коттеджный поселок резиденция у озера, ул 7-я линия (метро Девяткино, Парнас)Планировка
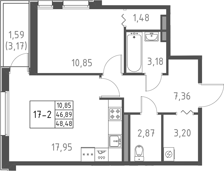
Характеристики квартиры
- Комнат: 2Е-к.кв
- S общая: 46.89 м2
Этаж: 3
Цена: 14 544 000₽
Цена за м2: 310 173₽- Отделка: Чистовая
Запросить информацию
+7 (812) 385-52-98Описание
Жилой комплекс представлен 4-этажными зданиями, выполненными по монолитной технологии с комбинированными фасадами. В архитектуре использованы лаконичные формы и натуральные материалы, фасады интегрированы в природное окружение. В доме предусмотрен грузовой лифт, лифтовые шахты не примыкают к квартирам. Лобби выполнены с применением натуральных материалов, спокойной цветовой гаммы и продуманного освещения.
В проекте предлагаются студии и квартиры с 1–2 комнатами, включая европланировки с кухнями-гостиными. Во всех лотах установлены стандартные окна, высота потолков составляет 3 м. Квартиры идут с полной чистовой отделкой: металлопластиковые окна, металлическая входная и межкомнатные двери, натяжные потолки со светильниками, розетки и выключатели. Стены подготовлены под покраску, полы — ламинат в комнатах и плитка с подогревом в санузлах, также установлена сантехника. Установлены счетчики ХВС, ГВС и электричества, балконы и лоджии имеют холодное остекление. Реализована система умный дом.
Территория комплекса закрыта от посторонних. Для жителей предусмотрены бассейн с подогревом, коворкинг, детский развивающий центр, спортивный зал, детская и спортивная площадки, а также вертолетная площадка. Владельцам авто доступна открытая стоянка.
Проект расположен во Всеволожском районе, в окружении озер Хепоярви, Курголовское и Кавголовское, рядом находятся Этнотропа Курголовская и пляжи. В 5–10 минут транспортом доступны стадион, спортивные клубы, кафе, магазины, аптеки, больница, школа и детский сад, заповедник Токсовские высоты, лыжная база и конный клуб. В 4 км расположена ж/д станция Осельки. До станций метро Девяткино и Парнас — 30 минут транспортом, до центра Санкт-Петербурга — 50 минут.
Основная информация о комплексе
- Метро: Девяткино, Парнас
- Срок сдачи: 4 кв. 2027
- Цена от: 7 908 000₽
- Застройщик: ГК Поинт







