Планировка

Характеристики квартиры
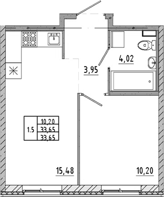
- Комнат: 2Е-к.кв
- S общая: 33.65 м2
Этаж: 1
Цена: 4 157 482₽
Цена за м2: 123 551₽
- Отделка: Чистовая
Запросить информацию
+7 (812) 385-52-98Описание
Жилой комплекс «Новые горизонты» представляет собой несколько разноэтажных кирпично-монолитных корпусов, рассчитанных на 914 квартир. Дома выполнены в лаконичном стиле, фасады украшены цветными кирпичными вставками и витражным остеклением. Балконы и лоджии имеют яркие цветовые акценты и расположены на разных уровнях. Первый этаж облицован декоративным камнем.
Эргономичные планировки квартир представлены как классическими, так и европланировками. Они передаются дольщикам с чистовой или подчистовой отделкой и без отделки. Квартиры спроектированы по концепции «БК-Стандарт» или «Базовый комфорт»: такой формат включает в себя полное техническое оснащение, коллекторную разводку отопления, установку импортных лифтов и немецкой стяжки, а также индивидуальный стиль и дизайн мест общего пользования.
Основная информация о комплексе
- Метро: Парнас, Девяткино
- Срок сдачи: 4 кв. 2024
- Цена от: 3 163 773₽
- Застройщик: ГК ЦДС