Планировка
Характеристики квартиры
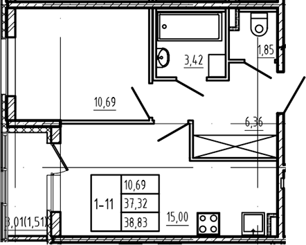
- Комнат: 2Е-к.кв
- S общая: 37.32 м2
Этаж: 1
Цена: 7 455 360₽
Цена за м2: 199 768₽- Отделка: Без отделки
Запросить информацию
+7 (812) 385-52-98Описание
Жилой комплекс состоит из малоэтажных кирпично-монолитных домов с элегантными, стильными фасадными решениями выполненными из качественных материалов с применением современных инженерных решений. В каждом доме сделана дизайнерская отделка входных групп и предусмотрены грузопассажирские двухсторонние лифты. В каждом подъезде спроектированы колясочные.
В проекте представлено множество планировочных решений: в наличии квартиры, как классического типа, так и европланировки. Сдаются они без отделки. В корпусах 7.1 и 7.2 дозаказ подчистовой или чистовой отделки обязательный. Высота потолков — от 2,75 до 3 метров. В каждую квартире предусмотрены система «умная инженерия» и индивидуальная система естественной вентиляции немецкого бренда Schiedel.
В закрытых дворах жилого комплекса спроектированы бесплатные wi-fi зоны, прогулочные дорожки, детские и спортивные площадки. В проекте обустроена стоянка с зарядкой для электромобилей. В каждом доме и каждом дворе ведется видеонаблюдение.
Жилой комплекс расположен во Всеволожском районе в окружении лесных массивов. В 7 минутах транспортом находятся Медное и Сарженское озера. В пешей доступности работают продуктовые магазины, кафе и рестораны, конный клуб, отделения почты и банка. Выезд на КАД находится в 15 минутах транспортом, метро «Парнас» — в 30 минутах транспортом. Предлагаем ознакомиться с промо-роликом.
Основная информация о комплексе
- Метро: Парнас
- Срок сдачи: 3 кв. 2026
- Цена от: 5 005 650₽
- Застройщик: ТАЙМС

