Планировка
Характеристики квартиры
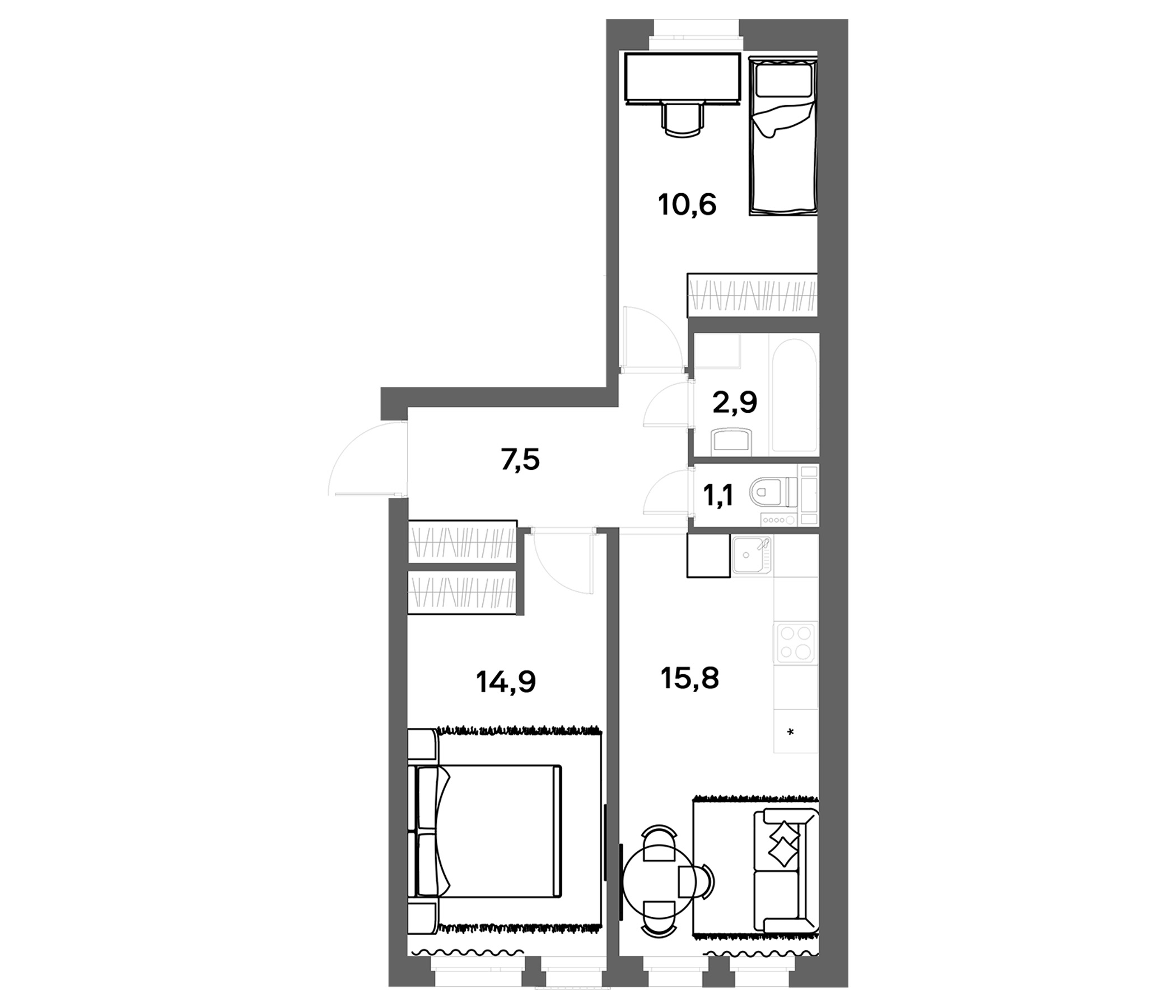
- Комнат: 3Е-к.кв
- S общая: 52.8 м2
Этаж: 5
Цена: 10 560 000₽
Цена за м2: 200 000₽- Отделка: Чистовая
Запросить информацию
+7 (812) 385-52-98Описание
Малоэтажный жилой комплекс бизнес-класса состоит из нескольких 5-этажных домов, возведенных по монолитной технологии и оформленных в стиле минимализм. Комбинированные фасады выдержаны в природной палитре — сером, песочном и древесном оттенках, что гармонично вписывает здания в окружающий ландшафт.
В проекте представлены квартиры студии, 1 и 2 комнатами, включая европланировки. Высота потолков составляет 2,7 метра, установлены увеличенные окна. Из части квартир открываются виды на лес и пруд, а в некоторых предусмотрены террасы. Жилье передается с чистовой отделкой: пол — ламинат 32 класса, в коридоре — глазурованный керамогранит, стены оклеены обоями под покраску, потолки — натяжные матовые. В санузлах использован керамогранит, установлены межкомнатные двери и сантехника. Входная дверь — белая матовая со стороны квартиры.
Территория комплекса благоустроена: во дворе высажены деревья и кустарники, обустроены зоны отдыха, беседки, детские площадки и воркаут-зоны. Для автомобилей предусмотрена стоянка за пределами двора. Въезд на территорию организован по принципу двор без машин, соблюдена безбарьерная среда. На 1 этаже расположены колясочные, действует система видеонаблюдения.
Проект находится в деревне Новое Девяткино Всеволожского района Ленинградской области. В 10 минутах пешком расположена остановка общественного транспорта Главная улица. В радиусе 10–20 минут пешком доступны школа, детский сад, поликлиника, Озерный парк, Капральев парк, торговый центр, магазины, кафе, пункты выдачи, салоны красоты. До КАД можно добраться за 10 минут транспортом, до метро Девяткино — за 15 минут, а дорога до центра Санкт-Петербурга занимает около 1 часа.
Основная информация о комплексе
- Метро: Девяткино
- Срок сдачи: 4 кв. 2026
- Цена от: 4 040 000₽
- Застройщик: ГК Базис








