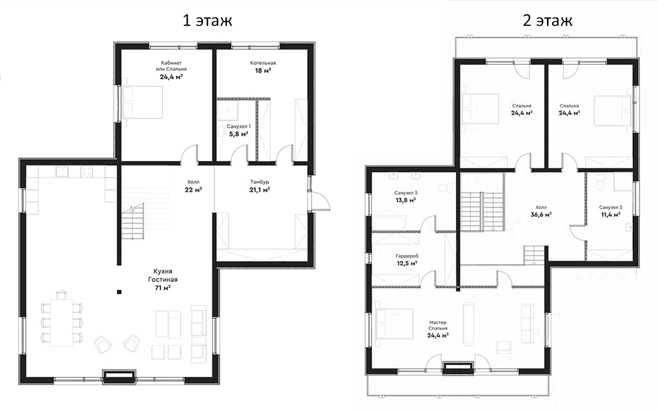
Планировка
Характеристики квартиры
- Комнат: Коттедж
- S общая: 271.6 м2
Этаж: 1
Цена: 38 900 000₽
Цена за м2: 143 225₽- Отделка: Подчистовая
Запросить информацию
+7 (812) 385-52-98Описание
Коттеджный поселок выполнен в едином архитектурном стиле и состоит из 22 участков, которые гармонично вписаны в природный ландшафт. Дома возводятся по канадской технологии с применением энергоэффективных материалов: стены утеплены, фасады отделаны камнем, штукатуркой и планкеном. Благодаря каскадному расположению участков открываются живописные виды на озера и закаты.
В поселке предлагаются на выбор 6 проектов 2-этажных шале на участках площадью от 8 до 11 соток. В домах установлены энергоэффективные стеклопакеты с УФ-защитой: увеличенные и панорамные окна, окна второго света и окна в ванных комнатах. Высота потолков варьируется от 2,3 до 7,2 м. Помещения идут с подчистовой отделкой, возможен заказ дизайнерского ремонта с мебелью. В каждом коттедже предусмотрен камин.
В поселок проведены все необходимые инженерные коммуникации: автономное водоснабжение из скважины, центральный газопровод, септик, электроснабжение 15 кВт и оптоволоконный интернет. Для владельцев авто предусмотрена стоянка, также здесь доступны пекарня и спа. Камерный формат, благоустроенная территория и близость к природе делают место привлекательным для круглогодичного проживания.
Проект расположен во Всеволожском районе — одном из самых живописных и экологически чистых мест Ленинградской области. В радиусе 10–20 минут транспортом находятся школа, детский сад, поликлиника, парк дикой природы Зубровник, лыжная база и спортивные комплексы. До ближайшей остановки общественного транспорта Американская деревня можно добраться за 5 минут пешком. Дорога до КАД занимает 25 минут транспортом, а до станции метро Парнас — 30 минут.
Основная информация о комплексе
- Метро: Парнас
- Срок сдачи: 3 кв. 2024
- Цена от: 28 769 000₽
- Застройщик: CHALET DE LUXE TOKSOVO






