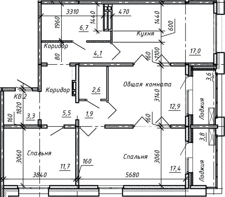
Планировка
Характеристики квартиры
- Комнат: 4Е-к.кв
- S общая: 83.1 м2
Этаж: 14
Цена: 13 394 000₽
Цена за м2: 161 179₽- Отделка: Подчистовая
Запросить информацию
+7 (812) 385-52-98Описание
Проект включает в себя 8 жилых домов высотой до 17 этажей. В облицовке вентилируемых фасадов использованы композитные панели, ламели и клинкерный кирпич. Парадные спроектированы с высокими потолками, витражным остеклением и двумя входами:со двора и с улицы. Входные группы оборудованы пандусами для людей с ограниченными возможностями. Отделка мест общего пользования выполнена по индивидуальному дизайн-проекту.
В ЖК предложено множество планировочных решений. Квартиры сдаются с подчистовой и чистовой отделкой с мебелью, высота потолков составляет 2,74 м.
В состав жилого комплекса входит 2 детских сада на 190 и 200 мест, а также школа на 825 мест. Для автовладельцев предусмотрен пятиэтажный паркинг на 299 мест. Внутренние дворы закрыты от машин и случайных прохожих. А по внешнему периметру организовано общественное пространство. В озеленении территории использовано более 1000 растений разных сортов и видов. Также во дворах установлены малые архитектурные формы, детские площадки и места для отдыха.
ЖК расположен в поселке Тельмана. В пешей доступности находятся фельдшерский пункт, детский сад, школа, супермаркеты и торговые центры. Метро «Купчино», «Рыбацкое» и «Шушары» находятся в 30 минутах транспортом.
Основная информация о комплексе
- Метро: Рыбацкое, Шушары, Купчино, Московская
- Срок сдачи: 3 кв. 2025
- Цена от: 5 399 800₽
- Застройщик: ГК СОЮЗ. Санкт-Петербург




