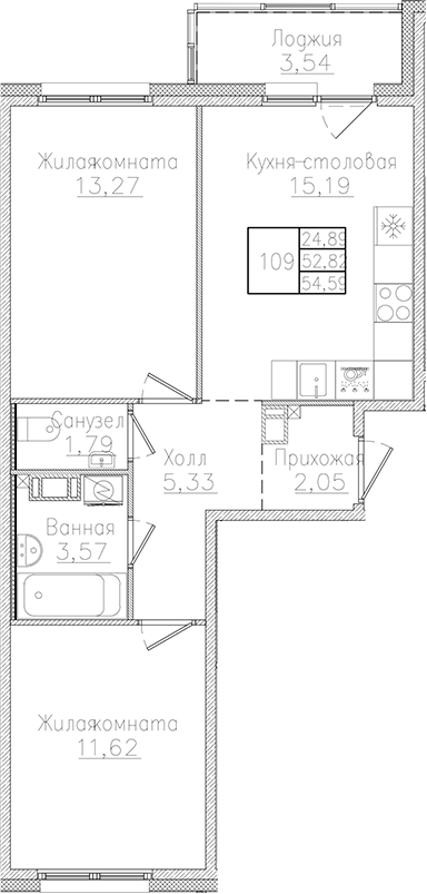
Планировка
Характеристики квартиры
- Комнат: 3Е-к.кв
- S общая: 52.82 м2
Этаж: 5
Цена: 8 911 500₽
Цена за м2: 168 715₽- Отделка: Без отделки
Запросить информацию
+7 (812) 385-52-98Описание
Проект представляет собой пригородный квартал высотой от 3 до 5 этажей. На каждом этаже спроектировано по 4-6 квартир. На цокольных этажах предусмотрены кладовые помещения для хранения сезонных вещей. На территории комплекса работают собственные котельные.
В ЖК предложено множество планировочных решений: в наличии квартиры, как классического типа, так и европланировки. У квартир на 1 этаже спроектированы открытые террасы. Они сдаются без отделки и высотой потолков 2,75 метра.
Территория комплекса закрыта от случайных прохожих, ведется видеонаблюдение. Предусмотрен ландшафтный дизайн, организована прогулочная зона. Установлены игровые и спортивные площадки. Также в состав комплекса входит детский сад, торговый центр и парковки.
Квартал находится в 27 км от Санкт-Петербурга в поселке Федоровское. За 15 минут транспортом можно добраться до дворцово-парковых ансамблей Пушкина и Павловска.
Так же имеется панорама ЖК https://pano.life-fly.ru/lensgrad/schastye/2025-07
Основная информация о комплексе
- Метро: Купчино, Шушары
- Срок сдачи: 1 кв. 2025
- Цена от: 4 826 225₽
- Застройщик: ЛенСтройГрад

