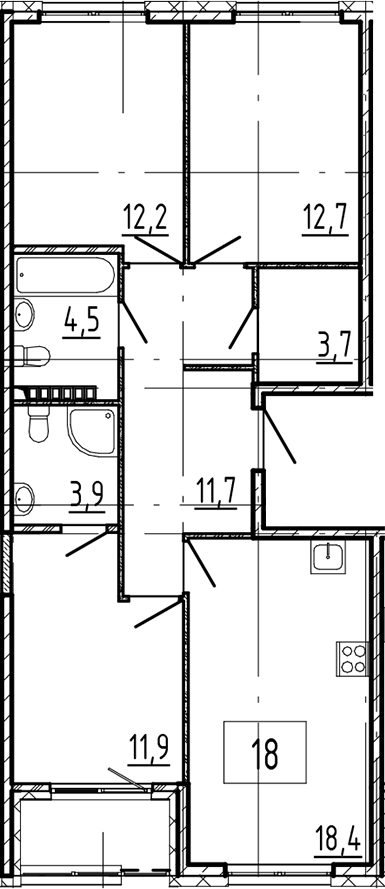
Планировка
Характеристики квартиры
- Комнат: 3-к.кв
- S общая: 79 м2
Этаж: 3
Цена: 18 734 297₽
Цена за м2: 237 143₽- Отделка: Без отделки
Запросить информацию
+7 (812) 385-52-98Описание
Данный жилой комплекс представляет собой современный монолитный малоэтажный проект. Во всех подъездах предусмотрены места для хранения колясок. Места общего пользования оборудованы безбарьерными входами.
В проекте предусмотрено множество планировочных решений — от студий до 3х-комнатных квартир с мастер-спальнями, гардеробными, мансардами и террасами. Высота потолков — до 5,73 метров. Сдаются они без отделки. Для части квартир предоставляется возможность дозаказа чистовой отделки.
Территория комплекса закрытая. Проект предусматривает игровые места для детей, участки для отдыха, пешеходные дорожки и озеленение участка разнообразными растительными посадками. Для автомобилистов имеется парковка на 96 мест, включая места для зарядки электромобилей.
ЖК расположен в Пушкинском райне. В шаровой доступности имеется все необходимое — продовольственные магазины, медицинские учреждения, детские сады и школы, рестораны и кафе.
Основная информация о комплексе
- Метро: Купчино, Шушары
- Срок сдачи: 4 кв. 2025
- Цена от: 18 057 281₽
- Застройщик: ГК Эталон. Санкт-Петербург
