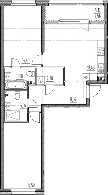
Планировка
Характеристики квартиры
- Комнат: 3Е-к.кв
- S общая: 68.4 м2
Этаж: 1
Цена: 10 751 504₽
Цена за м2: 157 186₽- Отделка: Без отделки
Запросить информацию
+7 (812) 385-52-98Описание
В жилом комплексе предусмотрено 10 корпусов высотой от 6 этажей. Над современной архитектурной концепцией проекта работало петербургское бюро «А. Лен». В оформлении стен зданий используется навесной вентилируемый фасад с облицовкой керамогранитом природных оттенков. Вход в парадную осуществляется с уровня земли. Общие зоны отличает авторский дизайн, сочетающий природную эстетику и современный технологический подход. Яркая навигация, качественные материалы, милые детали. В каждой парадной есть колясочная комната с розеткой и установлены современные скоростные лифты.
В проекте предложено множество планировочных решений: в наличии квартиры, как классического типа, так и европланировки. Сдаются они без отделки и с чистовой отделкой. Высота потолков от 2,7 метров, а на первых этажах до 3,3 метров. В каждой квартире предусмотрено увеличенное количество окон.
В жилом комплексе реализована закрытая охраняемая территория с контролем доступа и системой видеонаблюдения, с возможностью вывода всех камер на смартфон жителя. Единая концепция благоустройства выполнена с современными элементами и материалами. В проекте предусмотрена собственная инфраструктура: детский сад, школа, кабинеты врачей, пункт полиции, физкультурно-оздоровительный центр, отдельностоящий паркинг на 6 уровней с лифтами и пешеходный променад с коммерческими помещениями.
ЖК расположен в Пушкинском районе. Рядом есть все необходимое: учебные заведения, медицинские учреждения, крупнейшие в районе ТРК, фитнес клубы, кафе. КАД в 20 минут транспортом. Аэропорт и Невский лесопарк в 30 минутах транспортом. До метро «Шушары» можно добраться за 15 минут на автомобиле.
Основная информация о комплексе
- Метро: Шушары
- Срок сдачи: 4 кв. 2027
- Цена от: 3 559 248₽
- Застройщик: ГК ФСК. Санкт-Петербург


