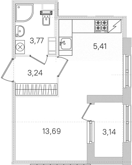
Планировка
Характеристики квартиры
- Комнат: Студия
- S общая: 26.11 м2
Этаж: 2
Цена: 7 879 998₽
Цена за м2: 301 800₽- Отделка: Чистовая
Запросить информацию
+7 (812) 385-52-98Описание
Жилой комплекс представляет собой 10 четырехэтажных корпуса, возведенных по технологии кирпично-монолитного строительства. Фасады облицованы штукатуркой светло-песочного и пастельно-зеленого оттенков. Парадные и холлы выполнены в мягких светлых тоннах по авторскому дизайн-проекту. Для удобства жителей предусмотрены колясочные и лапомойки, а на цокольном этаже расположены кладовые.
В проекте представлено множество планировочных решений — квартиры с террасами и французскими балконами, квартиры с окнами в санузле, а также лоты с саунами. На последних этажах комплекса высота потолков составляет 3 метра, в остальных квартирах — 2,7 метра. Все лоты имеют увеличенные оконные проемы. Сдаются они с отделкой White Box и чистовой отделкой.
Территория комплекса благоустроена: выполнено ландшафтное озеленение, спроектированы детские площадки, места для отдыха и прогулок. Дворовые пространства жилого комплекса посвящены знаковым произведениям А. С. Пушкина, а соединяют их променадные улицы с тематическими арт-объектами. Проектом предусмотрен медицинский центр, спортивный кластер с площадкой для командных игр и уличными тренажерами, центр детского творчества «Пушкинец» и площадка для выгула собак. Безопасность обеспечивается системой контроля доступа и видеонаблюдения, круглосуточной охраной.
Жилой комплекс расположен в г. Пушкин. В районе развита инфраструктура: рядом находятся продовольственные магазины, аптеки, медицинские центры, кафе и рестораны. В транспортной доступности расположен музей-заповедник «Царское село» и множество парков: Екатерининский, Баболовский, Отдельный, Фермский, Буферный и Павловский парки. До метро «Купчино» можно добраться за 25 минут на автомобиле.
Так же можно ознакомиться с ЖК с помощью аэропанорамы https://kvsspb.ru/upload/panorama/dubrovskii/dubrovskii.html
Основная информация о комплексе
- Метро: Купчино
- Срок сдачи: 4 кв. 2027
- Цена от: 6 685 654₽
- Застройщик: ГК КВС








