Планировка
Характеристики квартиры
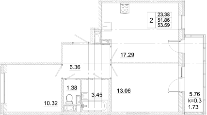
- Комнат: 3Е-к.кв
- S общая: 51.86 м2
Этаж: 4
Цена: 11 093 130₽
Цена за м2: 213 905₽- Отделка: Чистовая
Запросить информацию
+7 (812) 385-52-98Описание
Проект «Аэросити» представляет собой среднеэтажный панельный дом комфорт-класса в 11 этажей. Фасады покрыты декоративным защитным слоем штукатурки, которая сочетает белые и естественные зеленые цвета. Яркие оранжевые акценты добавляют дому красок. Согласно конструктиву дома балконы и лоджии выполнены витражным остеклением.
Квартиры в домах представлены как классическими, так и европланировками. В них предусмотрены потолки высотой до 2,73 метра. Покупателям предоставляется возможность выбрать квартиры с чистовой отделкой и без.
Основная информация о комплексе
- Метро: Купчино, Шушары
- Срок сдачи: 4 кв. 2026
- Цена от: 4 646 000₽
- Застройщик: ГК Лидер Групп









