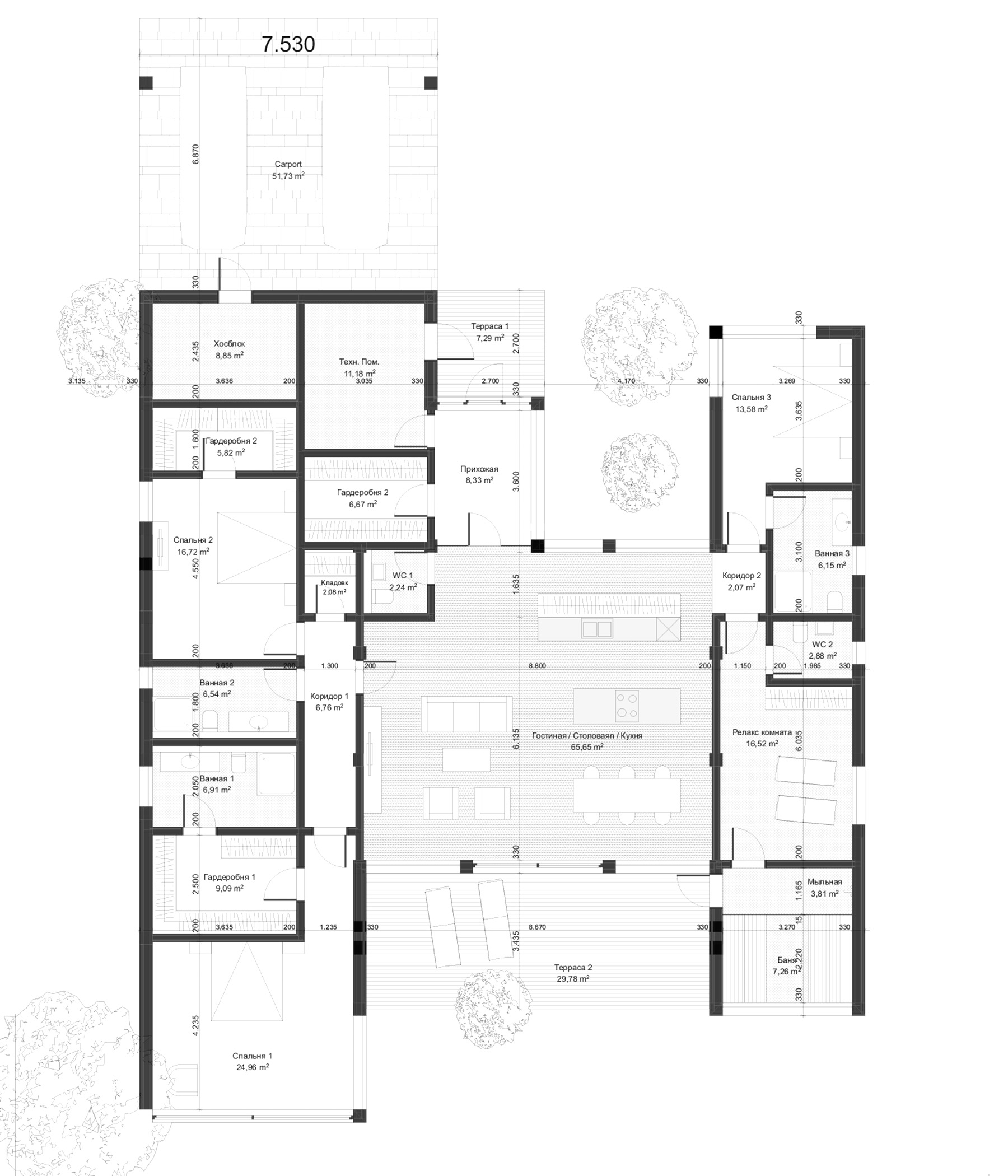
Планировка
Характеристики квартиры
- Комнат: Коттедж
- S общая: 226.9 м2
Этаж: 1
Цена: 60 825 500₽
Цена за м2: 268 072₽- Отделка: Без отделки
Запросить информацию
+7 (812) 385-52-98Описание
Территория поселка спланирована на 36 домовладений с единой концепцией благоустройства. Дома построены по газобетонной и брусовой технологиям. В отделке фасадов использованы панели и натуральное дерево, что придает постройкам современный и природный облик. В архитектуре сочетаются увеличенные и панорамные окна, создающие ощущение света и пространства. Высота потолков достигает 3 метров на первом этаже и до 4,5 метров на втором.
Коттеджи площадью от 180 кв. м передаются в состоянии теплого контура. В стоимость входят монолитный фундамент, возведенные стены, кровля, окна и входные двери, отделка фасадов, благоустройство придомовой территории, ограждение по периметру, парковочные площадки и пешеходные дорожки из брусчатки. Покупателям доступны как готовые дома с участками, так и участки без обязательного подряда, на которых можно реализовать индивидуальный проект.
Водоснабжение осуществляется из скважины, канализация — автономная, электричество подведено до границы участка с мощностью 15 кВт. Земельные участки относятся к категории ИЖС с возможностью оформления постоянной регистрации. Для жителей предусмотрены причал, спортивные и игровые площадки, прогулочные зоны и пляж, круглосуточная охрана и уличное освещение.
Поселок расположен на первой береговой линии Суходольского озера, в окружении соснового леса, в 55 минутах транспортом от КАД. До центра Санкт-Петербурга можно добраться за 1 час 25 минут транспортом. Окружающий ландшафт с видом на воду и лес создает атмосферу покоя и уединения, делая это место идеальным для отдыха и загородной жизни.
Основная информация о комплексе
- Метро: Проспект Просвещения
- Срок сдачи: 4 кв. 2025
- Цена от: 23 000 000₽
- Застройщик: ПриорДорСтрой



