Планировка
Характеристики квартиры
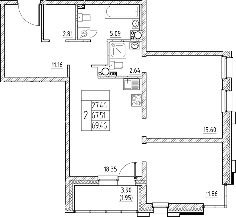
- Комнат: 3Е-к.кв
- S общая: 67.51 м2
Этаж: 6
Цена: 18 185 322₽
Цена за м2: 269 372₽- Отделка: Чистовая
Запросить информацию
+7 (812) 385-52-98Описание
Жилой квартал комфорт-класса разработан испанским архитектором Рикардо Бофиллом и состоит из 4 домов: 2 корпуса высотой 25 этажей и 2 корпуса по 7 этажей. Объекты сформированы в единой архитектурной концепции и гармонично вписаны в окружающую территорию.
В проекте представлены студии и квартиры с 1–3 комнатами, включая европланировки с кухней-гостиной, варианты с мастер-спальнями и гардеробными, а также квартиры с окнами в ванных. В квартирах обустроены остекленные лоджии или балконы, также доступны варианты с террасами на последних этажах с видом на парк и опции с патио на первом этаже. Высота потолков достигает 3 м, предусмотрено увеличенное остекление от 2 м. Жилье передается в чистовой отделке или в отделке whitebox. Чистовая отделка доступна в 2 цветах в зависимости от этажа. На четных этажах — чистовая Dark, на нечетных — Light. Реализована система умного дома.
Внутреннее пространство жилого комплекса организована как закрытый двор без машин. Территория оснащена системой видеонаблюдения. Для владельцев авто организован отдельный многоуровневый паркинг. Во дворе доступен собственный детский сад.
Проект расположен в Приморском районе рядом с Новорловским заказником. В 5–20 минутах пешком доступны детские сады, школы, медицинские учреждения, магазины, аптеки, пункты выдачи, кафе, рестораны, салоны красоты, фитнес-клубы и торговый центр. До станции метро Парнас — 15 минут транспортом, до выезда на ЗСД — 20 минут, до КАД — 25 минут, до центра Санкт-Петербурга — 35 минут, до аэропорта Пулково — 45 минут.
Основная информация о комплексе
- Метро: Парнас
- Срок сдачи: 2 кв. 2028
- Цена от: 6 680 368₽
- Застройщик: ГК ПСК
