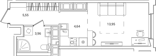
Планировка
Характеристики квартиры
- Комнат: Студия
- S общая: 28.1 м2
Этаж: 24
Цена: 7 103 680₽
Цена за м2: 252 800₽- Отделка: Без отделки
Запросить информацию
+7 (812) 385-52-98Описание
Жилой комплекс включает в себя 5 очередей строительства: 8 домов-башень и 9 малоэтажных домов. Семиэтажные корпуса и высотные здания выполнены в неоклассическом стиле.
В проекте предложено множество планировочных решений: в наличии квартиры, как классического типа, так и европланировки. В них предусмотрены нестандартные широкие балконы с увеличенной площадью и панорамным остеклением.
В состав комплекса входит 3 детских сада на 140 мест и школа на 825 мест. Территория комплекса благоустроена: выполнено авторское озеленение, проложены лесные дорожки, предусмотрены площадки для отдыха и спорта. На первых этажах предусмотрены коммерческие помещения. Для автовладельцев спроектировано 4 отдельностоящих паркинга и 6 пристроенных.
Жилой комплекс находится в Приморском районе Санкт-Петербурга Комплекс с 3 сторон окружают лесные массивы. Рядом с ЖК расположены Суздальские озера и Шуваловский парк, а в 10 минутах езды — Юнтоловский заповедник. Метро «Проспект Просвещения» находится в 15 минутах на машине.
Основная информация о комплексе
- Метро: Проспект Просвещения
- Срок сдачи: 2 кв. 2027
- Цена от: 6 692 016₽
- Застройщик: Ленстройтрест






