Планировка
Характеристики квартиры
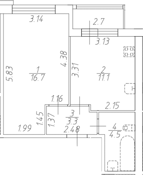
- Комнат: 1-к.кв
- S общая: 35.6 м2
Этаж: 1
Цена: 11 883 259₽
Цена за м2: 333 799₽- Отделка: Чистовая
Запросить информацию
+7 (812) 385-52-98Описание
Проект включает в себя 5 жилых корпусов высотой 9-13 этажей. Архитектурная концепция объекта разработана архитектором М.А. Мамошиным. Навесные вентилируемые фасады выполнены из керамогранита белых оттенков с яркими акцентами. В каждой парадной есть места для колясок, а в подвальном этаже размещаются кладовые помещения.
Покупателям квартир предложено множество планировочных решений: в наличии квартиры, как классического типа, так и европланировки до четырех комнат. Квартиры передаются дольщикам с подчистовой отделкой.
В состав комплекса входит детский сад на 215 мест. На закрытой территории установлены камеры видеонаблюдения и система контроля доступа. Для автовладельцев предусмотрено три подземных паркинга, в первой очереди — 365 мест. Территория комплекса озеленена, предусмотрены игровые площадки, веревочный парк для детей и зона WiFi во дворе.
Жилой квартал расположен в Приморском районе с развитой инфраструктурой. В пешей доступности есть продуктовые магазины, отделения почты и банков. Напротив дома располагается Юнтоловский лесопарк. Выезд на КАД и ЗСД расположен в 5 минутах транспортом, метро «Комендантский проспект» — в 10 минутах транспортом.
Основная информация о комплексе
- Метро: Комендантский проспект
- Срок сдачи: 3 кв. 2023
- Цена от: 6 411 604₽
- Застройщик: Аквилон. Санкт-Петербург
