Планировка
Характеристики квартиры
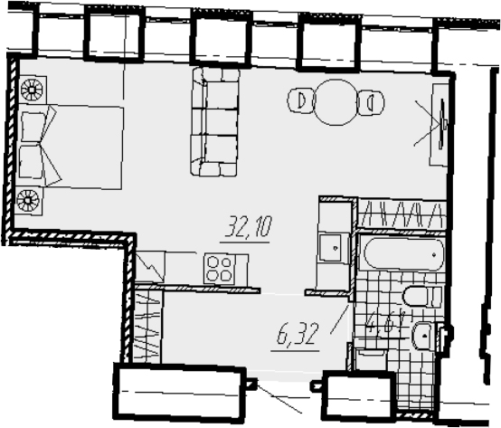
- Комнат: Студия
- S общая: 44.5 м2
Этаж: 1
Цена: 20 025 000₽
Цена за м2: 450 000₽- Отделка: Без отделки
Запросить информацию
+7 (812) 385-52-98Описание
Клубный дом представляет собой уникальный проект по сохранению исторической застройки Петроградской стороны. Дом построен в середине XX века в неоклассическом стиле, авторства архитектора Логина Шретера. В местах общего пользования выполнена дизайнерская отделка в классическом стиле.
В комплексе предложено множество планировочных решений: в наличии квартиры и апартаменты, как классического типа, так и европланировки. В них предусмотрены прихожая-холл с гостевым санузлом и местом под гардеробную, мастер-спальни, эркеры, а также мансардные и двухуровневые квартиры. Помещения сдаются без отделки и высотой потолков от 2,7 до 4,2 метров.
Первый этаж ЖК занимают коммерческие помещения с отдельными входами, витринными окнами и высокими потолками. А на первом этаже внутреннего корпуса находится зона лобби и ресепшн для резидентов 28 апартаментов. Внутренний двор благоустроен, вымощены пешеходные дорожки.
Клубный дом находится на Малом Проспекте П.С., д. 79-83, рядом с зелеными скверами, Каменноостровским проспектом и набережной реки Карповки. Метро «Петроградская» в 5 минутах пешком.
Основная информация о комплексе
- Метро: Петроградская, Чкаловская, Горьковская
- Срок сдачи: 1 кв. 2024
- Цена от: 20 025 000₽
- Застройщик: ГК Еврострой











