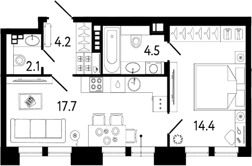
Планировка
Характеристики квартиры
- Комнат: 2Е-к.кв
- S общая: 42.9 м2
Этаж: 5
Цена: 37 451 852₽
Цена за м2: 873 004₽- Отделка: Без отделки
Запросить информацию
+7 (812) 385-52-98Описание
Клубный дом высотой 8 этажей рассчитан всего на 69 квартир. Здание выполнено по монолитной технологии, вентилируемые фасады облицованы натуральным известняком и гранитом, украшены декоративными рустами. Архитектурное решение подчеркивает внешний облик проекта, а просторные входные группы с ресепшен и welcome-зоной, дополненной собственной пинакотекой в анфиладе, создают комфортное пространство для встреч. В доме установлены грузовые лифты для удобства жильцов.
В проекте предлагаются квартиры с 1–5 комнатами, в том числе евроформата. Площадь жилья варьируется от 43 до 222 кв. м. В помещениях предусмотрены увеличенные алюминиевые окна и балконы с двухкамерными стеклопакетами, функцией микропроветривания и накладками из натурального дерева со стороны помещений. Высота потолков составляет 4,5 м на 1 этаже и 3,12 м на остальных уровнях. На верхних этажах расположены квартиры с мансардными окнами с фальцевой облицовкой. Все помещения передаются без отделки, реализована четырехступенчатая система очистки воды.
Внутреннее пространство комплекса благоустроено и озеленено. Между секциями устроена витражная анфилада, а во дворе разбит пейзажный сад. Организовано патио с зонами отдыха, детская площадка оснащена игровым оборудованием бренда RICHTER RUS. Подземный паркинг рассчитан на 57 машиномест и дополнен зарядками для электрокаров и кладовыми для хранения вещей.
Комплекс расположен в Петроградском районе, в центральной части Санкт-Петербурга. В радиусе 1–3 км находятся Ботанический сад, Лопухинский и Вяземский сады, набережная Карповки, культурные и деловые пространства, рестораны, киностудия Ленфильм, Левашовский хлебозавод и Крестовский остров.
До станции метро Петроградская можно добраться за 10 минут пешком. В 15 минутах транспортом находится выезд на КАД, в 35 минутах — аэропорт Пулково.
Основная информация о комплексе
- Метро: Петроградская
- Срок сдачи: 4 кв. 2028
- Цена от: 37 451 852₽
- Застройщик: RBI




