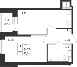
Планировка
Характеристики квартиры
- Комнат: 1-к.кв
- S общая: 34.75 м2
Этаж: 22
Цена: 9 778 012₽
Цена за м2: 281 382₽- Отделка: Подчистовая
Запросить информацию
+7 (812) 385-52-98Описание
Жилой квартал «Живи! В Рыбацком» представляет собой масштабный проект комплексной застройки площадью 65 га. Объект включает в себя 37 кирпично-монолитных корпусов высотой в 12-29 этажей, которые сдаются в шесть очередей. Вентилируемые фасады облицованы кирпичом светлых тонов. В холлах и местах общего пользования выполнена дизайнерская отделка.
Квартиры передаются дольщикам с чистовой отделкой, в которую входят установка металлических входных дверей, обои под покраску, кафель в санузлах и ламинат в коридоре, гостиной и кухнях. Они представлены классическими и европланировками. Из окон некоторых квартир на верхних этажах открывается вид на Неву.
Основная информация о комплексе
- Метро: Рыбацкое
- Срок сдачи: 2 кв. 2028
- Цена от: 5 088 599₽
- Застройщик: Группа Самолет. Санкт-Петербург












