Планировка
Характеристики квартиры
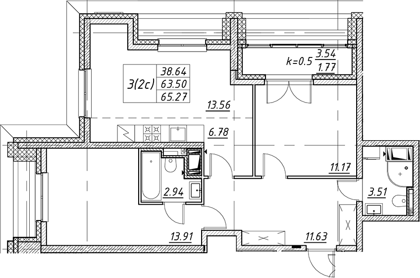
- Комнат: 3Е-к.кв
- S общая: 63.5 м2
Этаж: 21
Цена: 23 085 999₽
Цена за м2: 363 559₽- Отделка: Подчистовая
Запросить информацию
+7 (812) 385-52-98Описание
Жилой квартал «Цивилизация на Неве» – проект комплексного развития городской территории. Корпуса, расположенные на первой линии, построены по кирпично-монолитной технологии, светлые фасады оформлены в стиле сталинского ампира. Дома второй линии построены по бесшовной технологии.
Планировки различаются в каждом корпусе, они представлены как классическими так и европланировками, студии отсутствуют. В некоторых квартирах спроектированы потолки высотой до 3,5 метров, кухни-гостиные и ниши под гардеробные. Фасады первой линии обращены в сторону Невы, поэтому квартиры имеют видовые характеристики.
Основная информация о комплексе
- Метро: Улица Дыбенко
- Срок сдачи: 3 кв. 2027
- Цена от: 6 306 456₽
- Застройщик: ЛСР. Северо-Запад











