Планировка
Характеристики квартиры
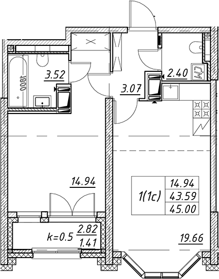
- Комнат: 2Е-к.кв
- S общая: 43.59 м2
Этаж: 11
Цена: 14 683 500₽
Цена за м2: 336 855₽- Отделка: Подчистовая
Запросить информацию
+7 (812) 385-52-98Описание
Жилой квартал «Цивилизация на Неве» – проект комплексного развития городской территории. Корпуса, расположенные на первой линии, построены по кирпично-монолитной технологии, светлые фасады оформлены в стиле сталинского ампира. Дома второй линии построены по бесшовной технологии.
Планировки различаются в каждом корпусе, они представлены как классическими так и европланировками, студии отсутствуют. В некоторых квартирах спроектированы потолки высотой до 3,5 метров, кухни-гостиные и ниши под гардеробные. Фасады первой линии обращены в сторону Невы, поэтому квартиры имеют видовые характеристики.
Основная информация о комплексе
- Метро: Улица Дыбенко
- Срок сдачи: 3 кв. 2027
- Цена от: 7 148 817₽
- Застройщик: ЛСР. Северо-Запад












