Планировка

Характеристики квартиры
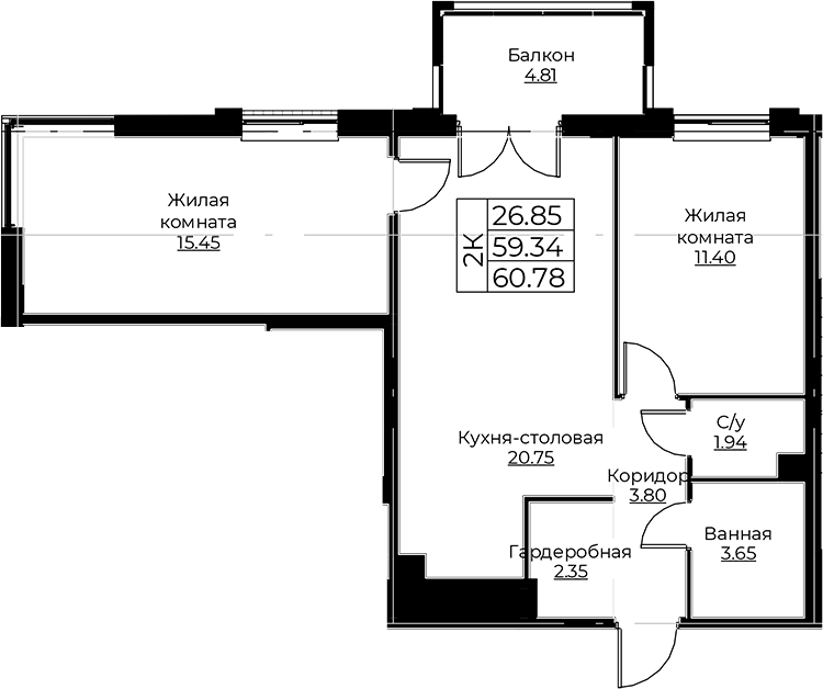
- Комнат: 3Е-к.кв
- S общая: 59.34 м2
Этаж: 2
Цена: 9 117 000₽
Цена за м2: 153 640₽
- Отделка: Чистовая
Запросить информацию
+7 (812) 385-52-98Описание
Жилой комплекс состоит из корпусов переменной этажности: 11 и 12 этажей. Дома возведены по панельной технологии строительства. Фасады первых этажей выполнены в антивандальном исполнении из крупноформатных декоративных плит, выше — по технологии СФТК с применением рельефа и декоративных штукатурок для создания сложной многослойной пластики. В парадных группах и холлах выполнена дизайнерская отделка, установлены современные лифты.
В проекте предложено множество планировочных решений: в наличии квартиры, как классического типа, так и европланировки. Сдаются они с чистовой отделкой в 2 цветовых решениях, высотой потолков от 2.67 до 4.27 метров и увеличенными окнами. Двухуровневые квартиры сдаются без отделки, с высотой потолков на 1 этаже — 2.97, 2 этаже — 3.1 метров. В ЖК имеются лоты с террасами и видом на лес.
На территории проекта реализована концепция «двор без машин». В комплексе спроектирован пешеходный бульвар с велодорожками, скейт-парк и спортивные площадки, предусмотрена собственная школа и 2 детских сада.
Жилой комплекс расположен в экологичном районе — гп. Новоселье. В поселке имеются школа, детские сады, поликлиника, фитнес-клубы, супермаркеты, кафе. Рядом расположен выезд на КАД. До метро «Проспект Ветеранов» можно добраться за 10 минут на автомобиле.
Основная информация о комплексе
- Метро: Проспект Ветеранов
- Срок сдачи: 2 кв. 2027
- Цена от: 4 812 700₽
- Застройщик: ГК ЕДИНО (ранее ЛенРусСтрой)