Студия в ЖК Полис Новоселье
городской поселок новоселье, центральная улица (метро Проспект Ветеранов)Планировка

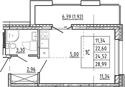
Характеристики квартиры
- Комнат: Студия
- S общая: 22.6 м2
Этаж: 9
Цена: 4 698 888₽
Цена за м2: 207 915₽
- Отделка: Чистовая
Запросить информацию
+7 (812) 385-52-98Описание
Проект представляет собой комплексную застройку монолитными домами высотой в 12 этажей. Вентилируемые цветные фасады с крупной графикой визуально разделены на большие блоки, что позволяет всему комплексу быть заметным с дальнего расстояния. На двух нижних этажах используется керамогранит, на верхних – фиброцементные плиты, которые формируют плакатную графику. Во всех домах выполнена дизайнерская отделка входных групп и предусмотрены колясочные. Жилой комплекс реализован по концепции безбарьерная среда.
В ЖК предложено множество планировочных решений: в наличии квартиры, как классического типа, так и европланировки. Сдаются они с высотой потолков 2,73 метра, чистовой и подчистовой отделкой.
В каждом корпусе на первых этажах предусмотрены коммерческие помещения для магазинов и сервисов. Во внутренних дворах запроектированы детские площадки с игровым оборудованием для разных возрастов и места для занятий спортом на свежем воздухе. Между корпусами предусмотрена просторная пешеходная зона с большой детской площадкой, столы для игры в теннис, места для отдыха с перголами и шезлонгами. Также в проекте предусмотрена беговая дорожка. В озеленении используются живые изгороди из различных кустарников, деревья высотой 4-5 метров аллейной посадки, многолетние травянистые и цветущие растения. Дворы, свободные от машин, огорожены и защищены системой контроля доступа и видеонаблюдением.
ЖК располагается в зеленом экологичном районе, недалеко от Шунгеровского лесопарка. Хорошая транспортная доступность обеспечена за счет близости выезда на КАД и ЗСД. Поблизости исторические окрестности: Стрельна, Петергоф, Ломоносов, Финский залив. Удобно добираться до аэропорта Пулково. Дорога до центра города займет около 45 минут. Рядом с комплексом расположена развитая сеть социальной и коммерческой инфраструктуры: детские сады, школы, аптеки и поликлиника, магазины, ледовая арена ICE RINK, фитнес центры и салоны красоты.
Основная информация о комплексе
- Метро: Проспект Ветеранов
- Срок сдачи: 2 кв. 2025
- Цена от: 3 763 888₽
- Застройщик: ГК Полис