Студия в ЖК ЛесART

гп новоселье, ул рябиновая (метро Проспект Ветеранов, Ленинский проспект)

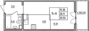
Планировка

Характеристики квартиры

  • Комнат: Студия
  • S общая: 28.11 м2
  • Этаж: 2
  • Цена: 5 639 328₽
  • Цена за м2: 200 616₽
  • Отделка: Чистовая

Запросить информацию

+7 (812) 385-52-98

Описание

Жилой комплекс представляет собой 5 высокотехнологичных домов высотой в 12 этажей. В зданиях выполнена дизайнерская отделка входных групп и установлены современные лифты. В корпусах предусмотрены сквозные проходы.

В жилом комплексе предложено множество планировочных решений: в наличии квартиры, как классического типа, так и европланировки. Сдаются они с чистовой отделкой и установленной системой «Умный дом». Основная высота потолков в квартирах составляет 2,67 метра, а в зоне прихожей — 2,47 метра. Окна видовых квартир выходят на лесопитомник.

В проекте предусматривается благоустройство территории: проезды с асфальтобетонным  покрытием и пешеходные тротуары, детские и спортивные площадки, места для отдыха, дорожки с набивным покрытием. На придомовой территории выполнено эффективное озеленение территории: посадка различных пород деревьев и кустарников, формирование различных «мини-ландшафтных» территорий, используя декоративные качества зеленых насаждений. Для владельцев автомобилей предусмотрена стоянка.

Жилой комплекс находится в Ломоносовском районе. Петергоф с фонтанами и Большим Петергофским дворцом, Стрельна с Константиновским дворцом находятся в радиусе 15 км от комплекса. Вблизи от ЖК расположен Шунгеровский лесопарк с большими пространствами для отдыха и спорта. Вся готовая инфраструктура находится рядом: школы, детские сады, поликлиники, магазины, кафе и рестораны. Торгово-развлекательный центр «Жемчужная плаза» и метро «Проспект Ветеранов» расположены в 15 минутах транспортом. 

Основная информация о комплексе

  • Метро: Проспект Ветеранов, Ленинский проспект
  • Срок сдачи: 1 кв. 2026
  • Цена от: 5 377 122₽
  • Застройщик: ГК ЕДИНО (ранее ЛенРусСтрой)

Запросить информацию

+7 (812) 385-52-98

Ипотечный калькулятор

Ежемесячный платеж: 0

Остались вопросы?

Заполните форму и мы свяжемся с Вами в ближайшее время.
Оставить заявку

Заполните форму