Планировка

Характеристики квартиры
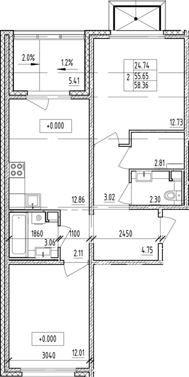
- Комнат: 2-к.кв
- S общая: 55.65 м2
Этаж: 1
Цена: 10 714 896₽
Цена за м2: 192 541₽
- Отделка: Чистовая
Запросить информацию
+7 (812) 385-52-98Описание
Жилой комплекс представляет собой 5 высокотехнологичных домов высотой в 12 этажей. В зданиях выполнена дизайнерская отделка входных групп и установлены современные лифты. В корпусах предусмотрены сквозные проходы.
В жилом комплексе предложено множество планировочных решений: в наличии квартиры, как классического типа, так и европланировки. Сдаются они с чистовой отделкой и установленной системой «Умный дом». Основная высота потолков в квартирах составляет 2,67 метра, а в зоне прихожей — 2,47 метра. Окна видовых квартир выходят на лесопитомник.
В проекте предусматривается благоустройство территории: проезды с асфальтобетонным покрытием и пешеходные тротуары, детские и спортивные площадки, места для отдыха, дорожки с набивным покрытием. На придомовой территории выполнено эффективное озеленение территории: посадка различных пород деревьев и кустарников, формирование различных «мини-ландшафтных» территорий, используя декоративные качества зеленых насаждений. Для владельцев автомобилей предусмотрена стоянка.
Жилой комплекс находится в Ломоносовском районе. Петергоф с фонтанами и Большим Петергофским дворцом, Стрельна с Константиновским дворцом находятся в радиусе 15 км от комплекса. Вблизи от ЖК расположен Шунгеровский лесопарк с большими пространствами для отдыха и спорта. Вся готовая инфраструктура находится рядом: школы, детские сады, поликлиники, магазины, кафе и рестораны. Торгово-развлекательный центр «Жемчужная плаза» и метро «Проспект Ветеранов» расположены в 15 минутах транспортом.
Основная информация о комплексе
- Метро: Проспект Ветеранов, Ленинский проспект
- Срок сдачи: 1 кв. 2026
- Цена от: 5 377 122₽
- Застройщик: ГК ЕДИНО (ранее ЛенРусСтрой)