4Е-к.кв в ЖК Лисино
адрес корпуса, улица дом дом корпус корпус план комплекса, выделите корпус н (метро Беговая)Планировка
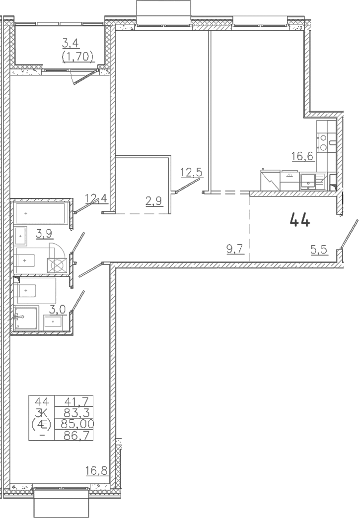
Характеристики квартиры
- Комнат: 4Е-к.кв
- S общая: 83.3 м2
Этаж: 2
Цена: 26 210 000₽
Цена за м2: 314 646₽- Отделка: Подчистовая
Запросить информацию
+7 (812) 385-52-98Описание
Жилой комплекс представляет собой малоэтажный современный проект, возведенный по технологии кирпично-монолитного строительства с комбинированными фасадами. Во входных группах выполнена дизайнерская отделка в современном стиле с использованием натуральных природных оттенков. Установлены домофоны в теплых тамбурах, бесшумные лифты, колясочные. На цокольных этажах оборудованы индивидуальные кладовые помещения.
В проекте представлено множество планировочных решений: в наличии квартиры, как классического типа, так и европланировки. В жилом комплексе предложены квартиры с саунами, террасами, мастер-спальнями с ванными и гардеробными, угловыми окнами, постирочными. Квартиры идут с подчистовой отделкой и высотой потолков до 5 метров.
Территория комплекса закрытая, ведется круглосуточная охрана и видеонаблюдение. Дворы образуют приватные пространства, свободные от машин и доступа посторонних. В составе комплекса запроектированы 4 детских сада на 810 мест и 2 школы на 1650 мест. На территории предусмотрены прогулочные зоны с местами для отдыха, также имеется зона выгула и тренировки собак. Дома соединяются сетью велодорожек и благоустроенных прогулочных маршрутов. На территории запланирован многоуровневый паркинг и автостоянка, также оборудованы станции для заряда электромобилей и парковки велосипедов. Для каждого сезона предусмотрен свой ландшафтный дизайн и растительность, в центре комплекса спроектирован большой парк.
Инфраструктура района развита — в пешей доступности расположены продовольственные магазины, медицинские учреждения, рестораны и кафе. Дорога до метро Беговая занимает 15 минут езды на автомобиле.
Основная информация о комплексе
- Метро: Беговая
- Срок сдачи: 4 кв. 2027
- Цена от: 10 015 000₽
- Застройщик: Унистрой. Санкт-Петербург



























