Планировка
Характеристики квартиры
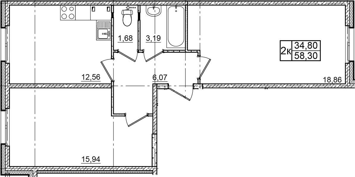
- Комнат: 2-к.кв
- S общая: 59.5 м2
Этаж: 1
Цена: 11 049 150₽
Цена за м2: 185 700₽- Отделка: Без отделки
Запросить информацию
+7 (812) 385-52-98Описание
Жилой комплекс состоит из 2 корпусов высотой от 3 до 6 этажей. Дома построены по монолитной технологии, а их фасады облицованы штукатуркой серого цвета с акцентами синего, зеленого, желтого и красного цветов.
В ЖК представлено несколько планировочных решений: от студий до трехкомнатных квартир различных площадей. Сдаются они без отделки и высотой потолков 2,56 метра.
На территории комплекса оборудованы детские и спортивные площадки, благоустроены зоны отдыха. Для владельцев автомобилей предусмотрена придомовая парковка.
Жилой комплекс расположен в Курортном районе. В пешей доступности есть детский сад, магазины, аптеки, кафе, в транспортной доступности — школы, городская поликлиника, фитнес-клубы, Зелоногорский ЦПКиО. Зеленогорский ж/д вокзал находится в 20 минутах пешком, метро Комендантский проспект — в 45 минутах транспортом.
Основная информация о комплексе
- Метро: Комендантский проспект
- Срок сдачи: 2 кв. 2023
- Цена от: 11 049 150₽
- Застройщик: ГК КВАЗАР



