3Е-к.кв в ЖК Bereg. Курортный
г сестрорецк, ул инструментальщиков 18 (метро Старая Деревня, Комендантский проспект, Пионерская)Планировка
Характеристики квартиры
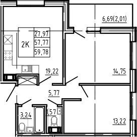
- Комнат: 3Е-к.кв
- S общая: 57.77 м2
Этаж: 4
Цена: 37 550 807₽
Цена за м2: 650 005₽- Отделка: Подчистовая
Запросить информацию
+7 (812) 385-52-98Описание
Проект представляет собой малоэтажную застройку высотой в 5 этажей. Все входные группы спроектированы по принципу безбарьерной жилой среды. Двери входных групп прозрачные, пропускающие естественный свет с улицы. В каждой секции есть помещения для хранения колясок или спортивного инвентаря, а также оборудования для водных видов спорта. На территории есть насосная станция для SUPов. А почтовые ящики работают по системе ESMART и открываются при помощи смартфона или электронного ключа.
В проекте предложено множество планировочных решений: в наличии аппартаменты классического типа, так и европланировки. Сдаются они с подчистовой отделкой Snow. А благодаря большим окнам и просторным балконам, пространство апартаментов круглый год наполнено природным светом.
Территория проекта благоустроена в традициях европейских загородных объектов. Концепция разработана студией ландшафтного дизайна DEREVO PARK. На закрытой территории ЖК спроектирована набережная, променад «Зеленый берег» с арт-объектами. Все дворы обращены к полноводному каналу и парку Дубки. В комплексе апартаментов предусмотрен охраняемый подземный паркинг. Здесь же размещаются индивидуальные кладовые. Подземный паркинг спроектирован с учетом современных требований к безопасности. А в часть помещений на первых этажах предусмотрена для размещения объектов собственной инфраструктуры.
Проект расположен в Курортном районе, у живописного канала, на противоположном берегу которого находится знаменитый исторический парк Дубки. В радиусе 1,5 километров от комплекса расположено несколько супермаркетов, ресторанов и баров, Сестрорецкий яхт-клуб, конный клуб «Дубки», спортивный комплекс и стадион, 3 общеобразовательные школы и 6 детских садов. Сам комплекс расположен непосредственно в лесопарке «Гагарка».
Основная информация о комплексе
- Метро: Старая Деревня, Комендантский проспект, Пионерская
- Срок сдачи: 2 кв. 2024
- Цена от: 9 304 685₽
- Застройщик: Element Development









