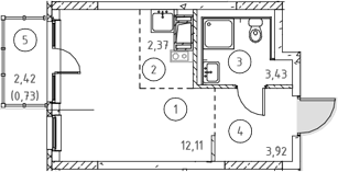
Планировка

Характеристики квартиры
- Комнат: Студия
- S общая: 21.83 м2
Этаж: 3
Цена: 3 756 047₽
Цена за м2: 172 059₽
- Отделка: Без отделки
Запросить информацию
+7 (812) 385-52-98Описание
Жилой комплекс «Новое Колпино» включает в себя кирпично-монолитные корпуса высотой в девять этажей. Фасады оформлены облицовочным кирпичом натуральных оттенков. Архитектурная композиция корпусов образует закрытые дворы.
Квартиры представлены всеми видами планировок от студий до четырех и более комнат. Они передаются с чистовой отделкой, в которую входят установка металлических входных дверей, кафель в санузлах, линолеум и фактурные обои на стенах. Благодаря этому клиенты могут въехать в новый дом как можно быстрее после покупки.
Основная информация о комплексе
- Метро: Рыбацкое
- Срок сдачи: 1 кв. 2026
- Цена от: 3 443 819₽
- Застройщик: Группа Самолет. Санкт-Петербург