2-к.кв в ЖК ВЕРЕВО-СИТИ
деревня малое верево, ул кутышева (метро Московская, Проспект Ветеранов, Купчино, Шушары)Планировка
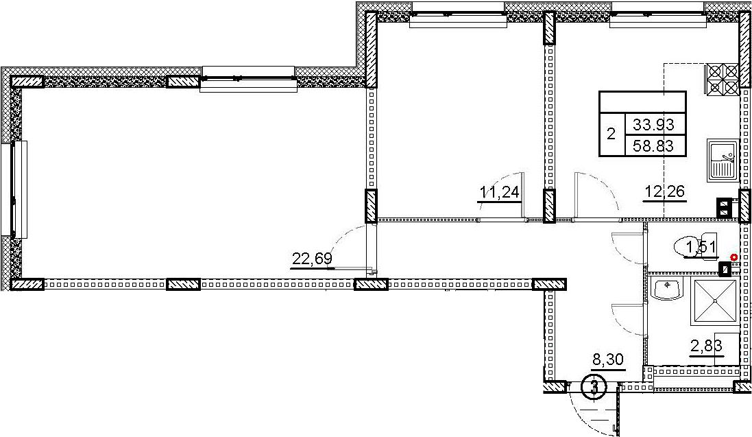
Характеристики квартиры
- Комнат: 2-к.кв
- S общая: 58.83 м2
Этаж: 1
Цена: 8 264 320₽
Цена за м2: 140 478₽- Отделка: Чистовая
Запросить информацию
+7 (812) 385-52-98Описание
Проект представляет собой малоэтажный жилой квартал. Он включает в себя 10 монолитных четырехэтажных корпусов. Дома располагаются блоками, образуя уютные закрытые и безопасные дворы с большим количеством зеленых насаждений и с зонами отдыха для взрослых и детей.
В комплексе предложено множество планировочных решений: в наличии квартиры, как классического типа, так и европланировки. В части помещениях предусмотрены кладовые, гардеробные и лоджии.
Территория комплекса благоустроена — спроектированы детские и спортивные площадки, площадки для отдыха и места для выгула животных. Внутренние дворы закрыты от случайных прохожих. На первых этажах предусмотрены коммерческие помещения. В пешей доступности спроектированы торговый комплекс и фитнес-центр.
Жилой комплекс расположен в 22 км от Санкт-Петербурга и в 3 км от Гатчины рядом с деревней Малое Верево. Метро «Московская», «Проспект Ветеранов» и «Купчино» расположены в 25 минутах транспортом.
Основная информация о комплексе
- Метро: Московская, Проспект Ветеранов, Купчино, Шушары
- Срок сдачи: 2 кв. 2025
- Цена от: 4 214 016₽
- Застройщик: ГК НСК





