Планировка
Характеристики квартиры
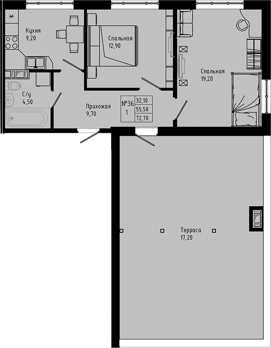
- Комнат: 2-к.кв
- S общая: 55.5 м2
Этаж: 7
Цена: 10 924 500₽
Цена за м2: 196 838₽- Отделка: Подчистовая
Запросить информацию
+7 (812) 385-52-98Описание
Проект представляет собой 3 панельных дома, высотой 7-8 этажей. На первых этажах предусмотрены коммерческие помещения, места для хранения колясок и велосипедов.
В комплексе предложено множество планировочных решений: в наличии квартиры, как классического типа, так и европланировки. Квартиры сдаются без отделки и высотой потолков 2,8 метра.
Для автовладельцев на территории комплекса предусмотрено 130 парковочных мест. Во дворах установлены разновозрастные игровые комплексы, беседка, зона для отдыха взрослых и искусственный пруд.
Жилой комплекс расположен в Гатчинском районе. В километре от новостройки находится административный центр Коммунара. Рядом протекает две реки — Ижора и Славянка.
Основная информация о комплексе
- Метро: Купчино
- Срок сдачи: 4 кв. 2024
- Цена от: 3 132 000₽
- Застройщик: Петроресурс СПБ

