Планировка
Характеристики квартиры
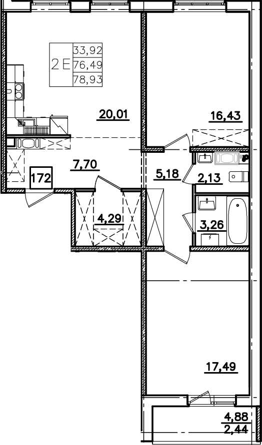
- Комнат: 3Е-к.кв
- S общая: 76.49 м2
Этаж: 5
Цена: 12 964 490₽
Цена за м2: 169 493₽- Отделка: Без отделки
Запросить информацию
+7 (812) 385-52-98Описание
Жилой комплекс «IQ Гатчина» включает в себя шесть корпусов высотой в 6-9 этажей. Архитектурная концепция объекта разработана шведским специалистом Йоханнесом Товаттом. Комплекс выполнен в стиле европейского пригорода. Наружные стены оформлены с применением штукатурки ярких цветов.
Квартиры имеют все виды планировок, в некоторых из них предусмотрены террасы. Квартиры расположены таким образом, что солнце освещает каждую из них. Застройщик передает дольщикам квартиры без отделки, есть возможность дозаказать чистовую.
Основная информация о комплексе
- Метро: Ленинский проспект, Московская
- Срок сдачи: 4 кв. 2027
- Цена от: 5 301 177₽
- Застройщик: Ленстройтрест



