Планировка
Характеристики квартиры
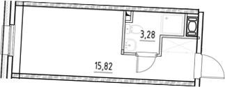
- Комнат: Студия
- S общая: 19.1 м2
Этаж: 8
Цена: 5 893 111₽
Цена за м2: 308 540₽- Отделка: Чистовая
Запросить информацию
+7 (812) 385-52-98Описание
Жилой комплекс представляет собой 3 корпуса комфорт-класса высотой в 13 этажей. Дома возведены по долговечной монолитной технологии строительства, композитные алюминиевые панели облицованы керамогранитом. Во всех входных группах выполнена дизайнерская отделка и установлены современные лифты. В каждом доме предусмотрены колясочные и стоянки для самокатов и велосипедов.
В жилом комплексе предложено множество планировочных решений: в наличии квартиры, как классического типа, так и европланировки. Сдаются они с подчистовой или чистовой отделкой, стандартными окнами и высотой потолков до 2,89 метров.
Внутренняя инфраструктура жилого комплекса ориентирована на обеспечение комфортного проживания жильцов. На закрытой территории комплекса ведется круглосуточное видеонаблюдение, организован двор парк. На первых этажах расположены коммерческие помещения. Для владельцев автомобилей предусмотрен отдельный многоуровневый паркинг.
Жилой комплекс расположен в отдалении от промышленных предприятий. В пешей доступности продуктовые магазины, школа, детский сад, университет, колледж, а также остановки общественного транспорта. До выезда на КАД 15 минут транспортом. Станция метро «Бухарестская» в 10 минутах пешком.
Основная информация о комплексе
- Метро: Бухарестская, Елизаровская
- Срок сдачи: 1 кв. 2028
- Цена от: 5 554 422₽
- Застройщик: Bau City






