Планировка
Характеристики помещения
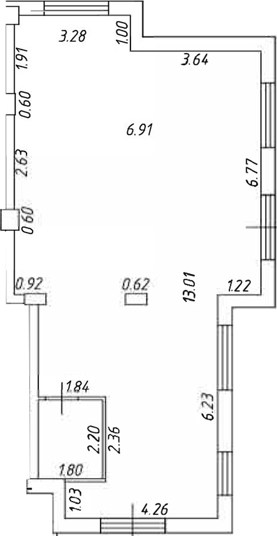
- S общая: 79.4 м2
Этаж: 1
Цена: 20 644 000₽
Цена за м2: 260 000₽- Отделка: Без отделки
- Свободное назначение
Запросить информацию
+7 (812) 385-52-98Описание
Проект представляет собой жилой комплекс высотой до 12 этажей. Архитектурная концепция объекта разработана бюро Юкки Тикканена. В отделке фасадов применяется штукатурка светлых оттенков с яркими цветовыми акцентами. Наружные стены украшены витражным остеклением и эркерами. В холлах выполнена отделка по авторскому дизайн-проекту.
Покупателям квартир предложено множество планировочных решений: в наличии квартиры, как классического типа, так и европланировки. Квартиры имеют просторные площади, увеличенные оконные проемы до 2 метров и потолки высотой 3 метра. В ЖК предусмотрен коворкинг «iD Club» – точка притяжения всех жильцов на первом этаже в каждом доме. Застройщик передает покупателям квартиры с подчистовой и чистовой отделкой. Также есть квартиры с эркерами.
На первых этажах расположены коммерческие помещения. Для автовладельцев предусмотрена парковка. Придомовая территория благоустроена ландшафтным дизайном. Во дворе расположены детские и спортивные площадки, уличные тренажеры, скейт-парк и зоны барбекю.
В пешей доступности работают школы, магазины, спортивные центры, и детские сады. В районе работает гипермаркет «Лента», в пяти минутах транспортом – ТРЦ «МЕГА Дыбенко». Жилой комплекс находится в 10 минутах транспортом от метро «Улица Дыбенко» и в пяти минутах от выезда на КАД.
Основная информация о комплексе
- Метро: Улица Дыбенко
- Срок сдачи: 2 кв. 2022, 3 кв. 2024
- Цена от: 6 357 600₽
- Застройщик: ООО Евроинвест Девелопмент





