Планировка
Характеристики помещения
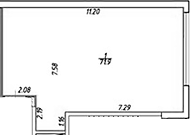
- S общая: 71.9 м2
Этаж: 2
Цена: 17 708 264₽
Цена за м2: 246 290₽- Отделка: Чистовая
- Спортивное
Запросить информацию
+7 (812) 385-52-98Описание
Проект представляет собой 4 корпуса высотой в 26 этажей, возведенных по монолитной технологии строительства, с фасадами облицованными штукатуркой.
Все апартаменты сдаются с чистовой отделкой и мебелью.
В состав комплекса входят конференц-центр, рестораны, спортивный зал, коворкинг, химчистка, читальные залы, кинокомнаты, игровые пространства, совместные кухни, кафе, спортзал, террасы и лаунж пространства. Также работают эвент-менеджеры, которые организуют до 5 мероприятий в день: йога, клубы по интересам, философский вечер, вечерняя пробежка, обеденный мозговой штурм, 15 минут знакомств.
Проект расположен в Московском районе с развитой инфраструктурой и сетью общественного транспорта. В пешей доступности есть школы, детские сады, продуктовые магазины, кафе и рестораны, отделения почты и банков, а также медицинские центры и Пулковский парк. Метро «Московская» расположено в 20 минутах пешком. Развязка КАД и ЗСД находится в 10 минутах транспортом.
Основная информация о комплексе
- Метро: Московская
- Срок сдачи: 2 кв. 2023, 3 кв. 2024
- Цена от: 12 225 031₽
- Застройщик: Орджоникидзе 44




