Планировка
Характеристики помещения
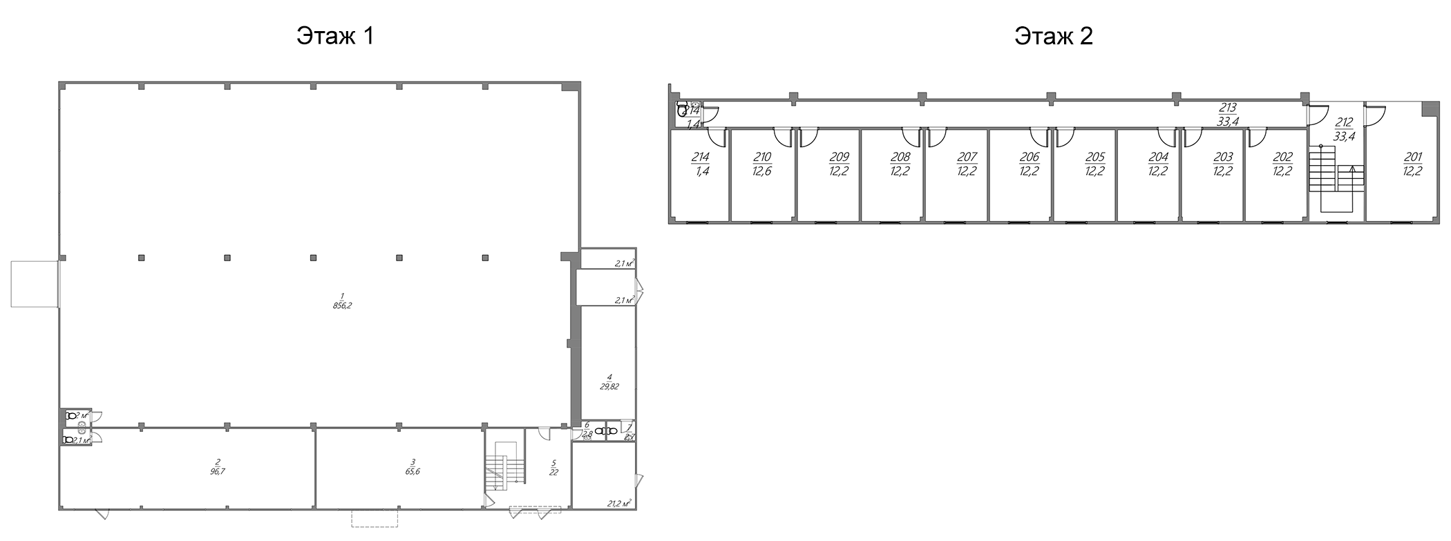
- S общая: 1368 м2
Этаж: 1
Цена: 123 183 000₽
Цена за м2: 90 046₽- Отделка: Чистовая
- Складское
Запросить информацию
+7 (812) 385-52-98Описание
Комплекс представляет собой 10 отдельно стоящих зданий, построенных по монолитной и металлокаркасной технологии. Фасады оформлены сэндвич-панелями в контрастной цветовой гамме. Корпусы включают помещения различного назначения — складские, офисные и торговые. Здание №4 имеет площадь 1 368 кв. м, состоит из 3 блоков на первом этаже и 11 помещений по 12 кв. м на втором. Здание №8 площадью 1 488 кв. м — 1-этажное, поделено на 5 секций с потолками 6 м и отдельными входами. В здании №10 площадью 2 880 кв. м первый этаж занимают помещения от 10 до 280 кв. м, второй — открытая планировка с возможностью перепланировки.
В зданиях выполнена чистовая отделка, предусмотрены наливные полы, освещение, пожарная сигнализация, гидранты, подъемно-секционные ворота на нулевом уровне, организован водоотвод и канализация. Возможна перепланировка помещений. В помещениях стандартные окна, общедомовая система вентиляции, выполнена разводка труб. Входная группа выделена, допускается установка вывески. Назначение помещений — складское, часть из них сдана в аренду.
Объект расположен на огороженной территории с контролем доступа. На участке организована большая асфальтированная парковка на 300 машиномест. Инфраструктура коммерческого квартала поддерживается в рабочем состоянии, объект интегрирован в современный деловой район Красного Села.
Комплекс находится на первой линии улицы Юных Пионеров в Красном Селе, рядом с выездами на КАД, ЗСД, в сторону Пушкина, Павловска и аэропорта Пулково. В 10 минутах пешком — Большой Ильинский сад. Поблизости расположена остановка автобусов и тактовых электричек, следующих до Санкт-Петербурга каждые 15 минут.
Основная информация о комплексе
- Метро: Проспект Ветеранов
- Срок сдачи: 1 кв. 2025
- Цена от: 123 183 000₽
- Застройщик: Реформа Девелопмент







