в ЖК Большая Охта
Партизанская улица (метро Маяковская, Невский проспект, Гостиный двор, Площадь Восстания, Ладожская)Планировка

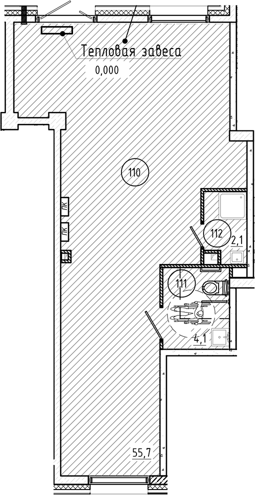
Характеристики помещения
- S общая: 61.9 м2
Этаж: 1
Цена: 22 903 000₽
Цена за м2: 370 000₽
- Отделка: Без отделки
- Офисное
Запросить информацию
+7 (812) 385-52-98Описание
Жилой комплекс включает в себя 11 домов высотой от 10 до 12 этажей. В каждой парадной выполнена дизайнерская отделка и установлены колясочные, а в паркинге и на техническом этаже предусмотрены индивидуальные кладовые.
В проекте предложено множество планировочных решений. Особенностями квартир стали высокие потолки от 2,7 до 3 метров и увеличенные окна. Горизонтальная разводка труб водоснабжения и отопления и вынесенные в холл дома счетчики сохраняют эстетичный дизайн комнат. Встроенные клапаны инфильтрации воздуха поддерживают чистоту и свежесть воздуха.
На территории комплекса спроектированы игровые площадки для детей разных возрастов, спортивные и лаундж-зоны, а также коворкинг. Комплекс облагорожен и озеленен. Вместе с «Умным домом» безопасность поддержат и камеры видеонаблюдения на всей территории проекта. В жилом комплексе работают пост охраны и консьержные. На территории спроектированы совмещенная с детским садом школа, а также еще один детский сад, встроенный в дом. Так же в жилом комплексе предусмотрен большой кабинет педиатра.
Местоположение проекта характеризуется удобной транспортной доступностью. Отсюда на машине до исторического центра можно добраться за 5-7 минут, до Ладожского вокзала — за 5 минут. За 20 минут можно дойти до станции метро «Ладожская». В 10 минутах располагается крупный торговый комплекс «Охта Молл». За 12 минут можно дойти до креативного кластера Design District DAA. Рядом с жилым комплексом планируется парк и культурное пространство на Охтинском мысе.
Основная информация о комплексе
- Метро: Маяковская, Невский проспект, Гостиный двор, Площадь Восстания, Ладожская
- Срок сдачи: 3 кв. 2025, 2 кв. 2026
- Цена от: 14 579 000₽
- Застройщик: ЛСР. Северо-Запад