Планировка

Характеристики помещения
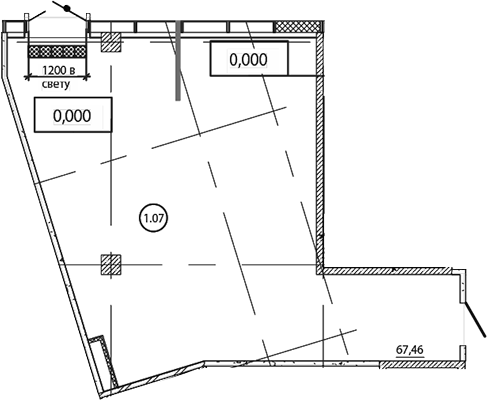
- S общая: 67.46 м2
Этаж: 1
Цена: 23 374 890₽
Цена за м2: 346 500₽
- Отделка: Без отделки
- Свободное назначение
Запросить информацию
+7 (812) 385-52-98Описание
Проект представляет собой 5 этажное здание, возведенное по монолитной технологии строительства с фасадным остеклением. В МФК предусмотрены лифты для инвалидов, МГН и медицинских каталок.
В проекте представлены помещения от 13 до 1100 м. Каждое помещение подходит для медицинской лицензии, соответствует нормам и требованиям инсоляции, вентиляции и энергообеспечения. Сдаются они без отделки, высотой потолков 3.3 метра и витринным остеклением. Помещения на 1 этаже имеют отдельный вход.
В МФК спроектирован отдельный этаж для временного пребывания пациентов, конференц-зал и медицинский коворкинг, ресепшен и зона ожидания. Для владельцев автомобилей предусмотрен подземный паркинг.
Проект расположен в Калининском районе на пересечении Светлановского и Северного проспектов в локации со множеством других медицинских организаций. В пешей доступности находятся магазины, кафе, фитнес-клубы, Муринский парк и парк Сосновка. До метро «Академическая» можно добраться за 20 минут пешком.
Реализация по договору ДКПБВ (договор купли-продажи будущей вещи). Помещения не поставлены на кадастровый учет/на них не зарегистрировано право собственности.
Основная информация о комплексе
- Метро: Академическая
- Срок сдачи: 4 кв. 2025
- Цена от: 14 276 955₽
- Застройщик: Smart commerce