в ЖК Комплекс апарт-отелей VALO
ул Салова (метро Бухарестская, Московские ворота, Электросила, Волковская, Международная, Адмиралтейская)Планировка
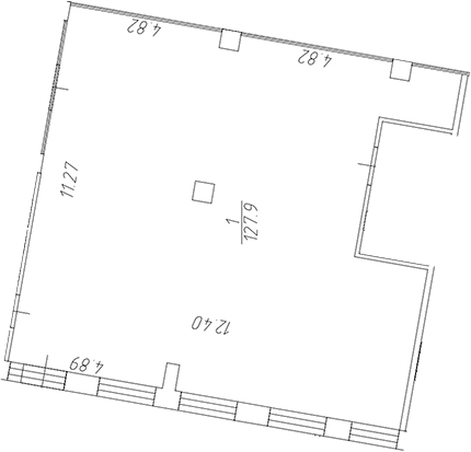
Характеристики помещения
- S общая: 138.7 м2
Этаж: 2
Цена: 36 062 000₽
Цена за м2: 260 000₽- Отделка: Подчистовая
- Свободное назначение
Запросить информацию
+7 (812) 385-52-98Описание
Апарт-комплекс включает в себя 5 монолитных домов в 1 и 4 секции. Наружные стены оформлены в белых цветах с яркими цветовыми акцентами. Отделка холлов выполнена по-авторскому дизайн-проекту. В секциях установлены бесшумные скоростные лифты «Otis» и предусмотрена лобби-зона. Управление апарт-отелем осуществляет собственная управляющая компания.
Квартиры представлены просторными классическими планировками. Из окон открывается вид на зеленые зоны, а верхние этажи имеют видовые характеристики. Квартиры передаются дольщикам с чистовой отделкой в светлых тонах. Во 2 и 3 секции условие покупки квартиры — дозаказ мебели.
На первых этажах находится двухэтажная торговая галерея. Закрытый двор украшен площадью с фонтаном. Придомовая территория благоустроена местами для отдыха и зелеными зонами. На территории комплекса находится собственный фитнес-клуб, в котором спроектирован бассейн длинной — 25 метров.
Комплекс апартаментов расположен во Фрунзенском районе с развитой инфраструктурой. В пешей доступности находятся школы, детские сады, филиалы вузов, отделения почты и банков, а также крупные торгово-развлекательные центры «РИО» и «Континент». Метро «Бухарестская» расположено в 5 минутах пешком.
Основная информация о комплексе
- Метро: Бухарестская, Московские ворота, Электросила, Волковская, Международная, Адмиралтейская
- Срок сдачи: 2 кв. 2019, 2 кв. 2023
- Цена от: 7 980 000₽
- Застройщик: ООО ГАЛС
