Планировка

Характеристики помещения
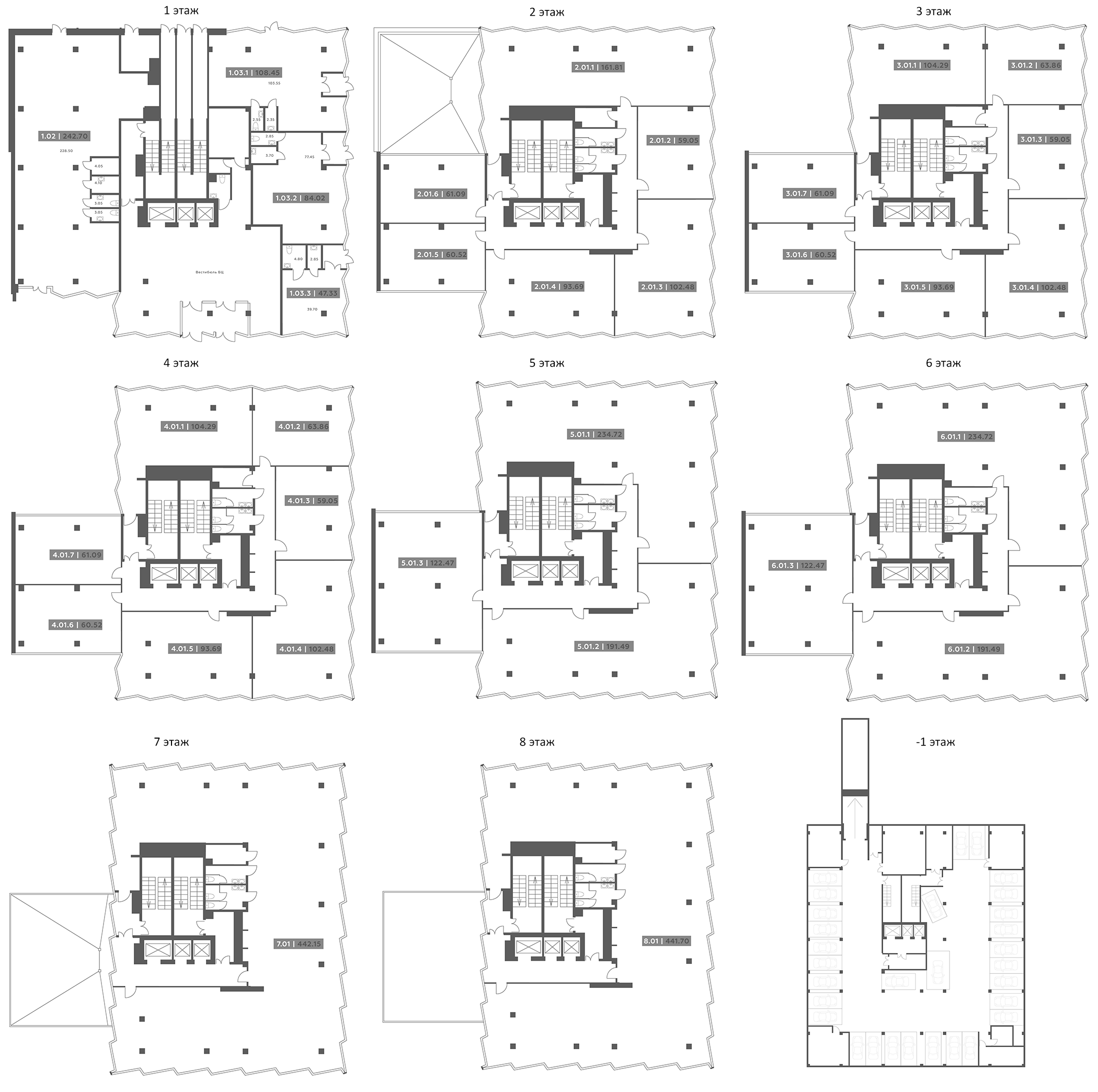
- S общая: 6966.19 м2
Этаж: -1
Цена: 1 652 637 217₽
Цена за м2: 237 237₽
- Отделка: Без отделки
- Свободное назначение
Запросить информацию
+7 (812) 385-52-98Описание
Бизнес-центр класса А+ представляет собой 8-этажное здание, возведенное по монолитной технологии строительства с фасадным остеклением. Дизайн фасада разработан архитектурной студией «Intercolumnium».
Общая площадь здания 6 966 кв.м., представлено 28 офисами с панорамными и витринными окнами, высотой потолков от 3.3 до 4.2 метров. Помещения сдаются без отделки.
В проекте предусмотрена возможность управления системами безопасности и климат-контроля в удаленном формате, через смартфон. На всей территории комплекса спроектирован бесшовный Wi-Fi и сквер для отдыха. Для владельцев автомобилей предусмотрен подземный паркинг с доступом на лифте.
Бизнес-центр расположен в Адмиралтейском районе на пересечении Московского проспекта и Обводного канала. Рядом расположены кафе, супермаркеты, аптеки, мед. центры. В пешей доступности расположены метро «Фрунзенская» и «Балтийская».
Основная информация о комплексе
- Метро: Фрунзенская, Балтийская, Обводный канал
- Срок сдачи: 4 кв. 2026
- Цена от: 22 296 325₽
- Застройщик: Аквилон. Санкт-Петербург